Luxury Real Estate Group Boston > Easton > 345 Bay Road

LRG Boston

(617) 233-5800

355 Boylston St

Boston, Ma 02116

345 Bay Road

Easton, MA

Property Description

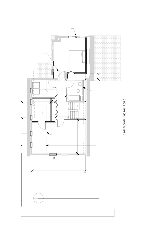
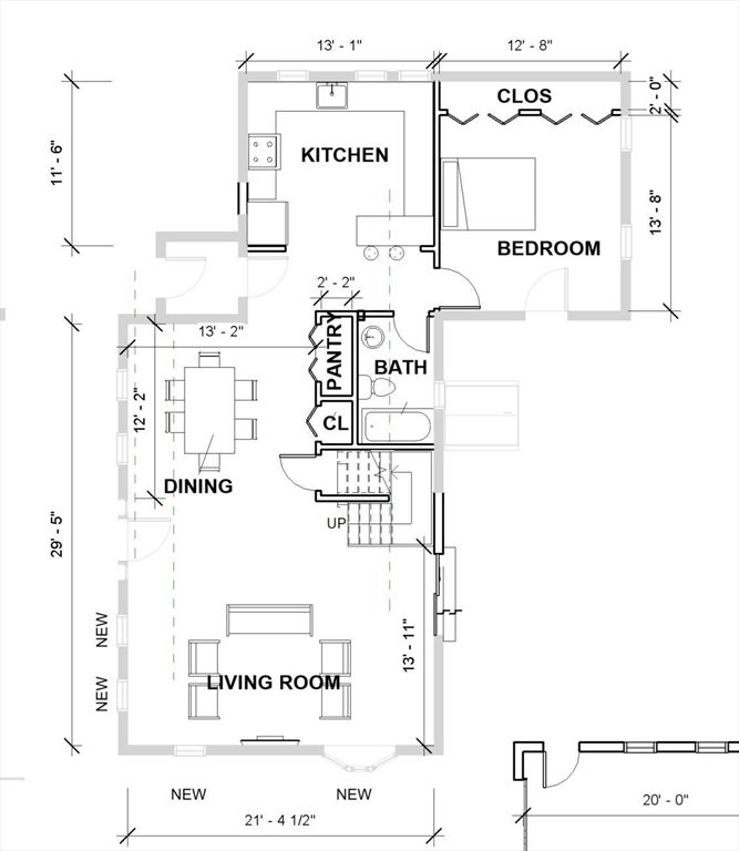
Ready Set Go! Attention Contractors!! Traditional Farmhouse Style Home is currently down to Studs & Ready to Finish into your Dream Home! Finished Plans Available. This Sweet <3 Property is currently planned to feature 1,910 SF including 3 generous bedrooms (1) bedroom on first floor and (2) bedrooms upstairs and will also have 2 full baths, Living, Dining & Kitchen w Slider to private back yard, Circular Driveway, some Mature Landscaping, 2-car garage, Backyard Barn (packed with potential!) and a New Septic System (2023). Located on Historical & Scenic Bay Road in North Easton this home sits on a fantastic large level corner lot abutting Welsch Woods Condo development, and is conveniently just minutes to Easton Five Corners, and only 3-4 miles radius between 24, 495 & 95. Purchase "AS IS" or with a Customized Builder Package (@ Additional Cost)

offered at

$499,900

  • Status: Price Change
  • Listing ID: 73483437
  • Bedrooms: 3
  • Full Baths: 2
  • Living Area: 1,910 sqft Convert
  • Lot Size: 34,848 sqft Convert
  • Acres: 0.8

Additional Details

Type: Single Family, Single Family Residence

Zip Code: 02356

Parking

Garage: 2

Garage Capacity: 6

Parking Spaces: 6

Rooms and Dimensions

Total Rooms: 7

Contact: LRG Boston at (617) 233-5800

LRGBOSTON.COM

355 Boylston St. Boston, MA 02116

Map

Photos