Luxury Real Estate Group Boston > Boston > 40 Chappie St #1

LRG Boston

(617) 233-5800

355 Boylston St

Boston, Ma 02116

40 Chappie St #1

Boston, MA

Property Description

Welcome to 40 Chappie #1, a beautifully maintained condominium offering the perfect blend of comfort, convenience, and style. This bright, open-concept unit features a spacious living area ideal for entertaining, generous bedrooms, and a modern kitchen. Enjoy natural light and hardwood floors. Step outside to a shared yard and patio, a rare outdoor retreat in this urban setting, perfect for summer evenings or a quiet morning coffee. Located in a the historic and vibrant neighborhood close to shops, restaurants, public transit, and major highways, this condo delivers a low-maintenance lifestyle with easy access to everything you need. Ideal for first-time buyers, downsizers, or investors seeking solid rental potential.

offered at

$548,500

  • Listing ID: 73483585
  • Bedrooms: 2
  • Full Baths: 1
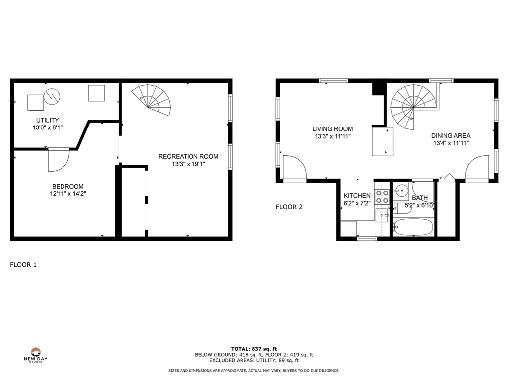
  • Living Area: 821 sqft Convert
  • Lot Size: 2,000 sqft Convert
  • Acres: 0.05

Additional Details

Type: Condo, Condominium

Style: 2/3 Family

Area: Charlestown

Zip Code: 02129

HOA Fee: $255

Living Levels: 2

Unit Level: 1

Parking

Parking: On Street

Rooms and Dimensions

Total Units: 3

Total Floors: 2

Total Rooms: 5

Contact: LRG Boston at (617) 233-5800

LRGBOSTON.COM

355 Boylston St. Boston, MA 02116

Map

Photos