Luxury Real Estate Group Boston > Methuen > 7 Germaine Avenue

LRG Boston

(617) 233-5800

355 Boylston St

Boston, Ma 02116

7 Germaine Avenue

Methuen, MA

Property Description

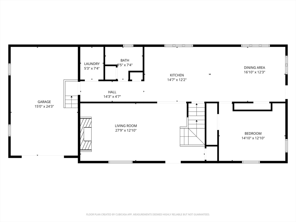
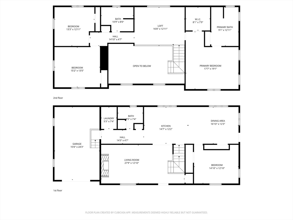
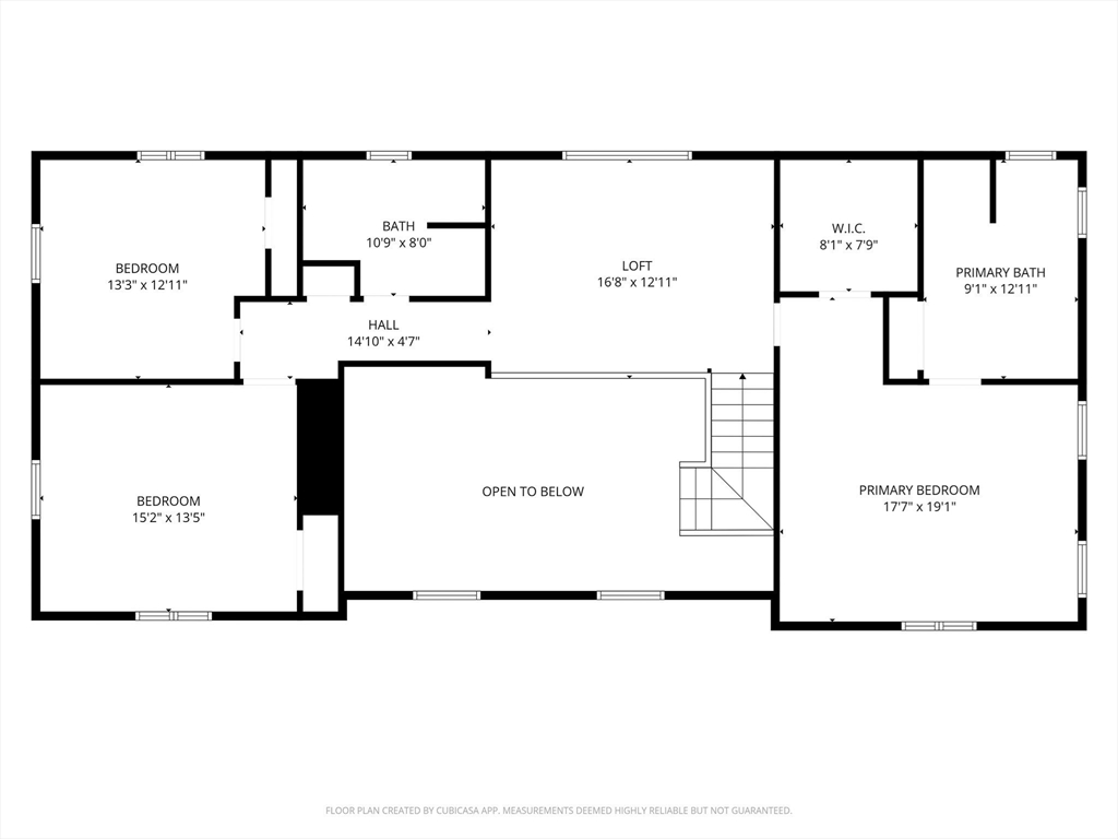
Meticulously maintained, maintenance-free vinyl-sided contemporary set on a quiet dead-end street with desirable northwest exposure for beautiful natural light. Home was built by seller and has been lovingly cared for. This sun-filled, open-concept 4-bedroom, 3-bath home features a beautiful white kitchen that flows into the living area with a working fireplace that is a gorgeous focal point of the family room. One bedroom located on main level. The en-suite primary bedroom with jacuzzi tub and separate shower offers comfort and privacy, while A/C pumps keep the home comfortable year-round. Enjoy a flat, level yard perfect for outdoor activities. Full basement for storage. Additional highlights include generator hookups, an attached garage plus an awesome detached two car garage for extra storage or hobbies. Convenient location close to shopping and major highways. A true move-in-ready home in a desirable setting. Septic to be replaced by seller. First showing 3/21/26 12-2:00 p.m.

offered at

$729,900

  • Status: New
  • Listing ID: 73483660
  • Bedrooms: 4
  • Full Baths: 3
  • Living Area: 2,454 sqft Convert
  • Lot Size: 18,639 sqft Convert
  • Acres: 0.43

Additional Details

Type: Single Family, Single Family Residence

Area: East Methuen

Zip Code: 01844

Parking

Garage: 2

Garage Capacity: 5

Parking: Attached, Paved Drive, Off Street

Parking Spaces: 5

Rooms and Dimensions

Total Rooms: 6

Contact: LRG Boston at (617) 233-5800

LRGBOSTON.COM

355 Boylston St. Boston, MA 02116

Map

Photos