Luxury Real Estate Group Boston > Orleans > 67-69 Bakers Pond Rd

LRG Boston

(617) 233-5800

355 Boylston St

Boston, Ma 02116

67-69 Bakers Pond Rd

Orleans, MA

Property Description

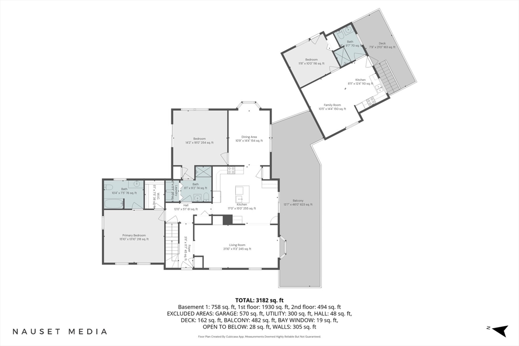
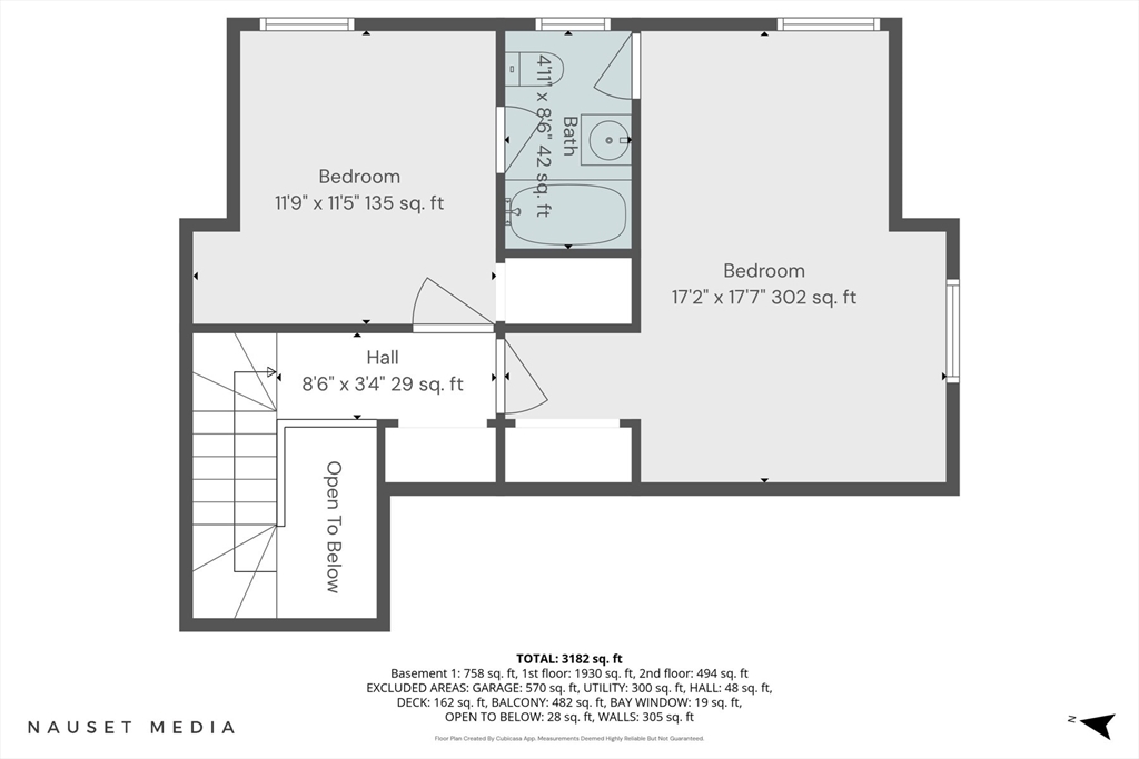
Welcome to this classic Cape-style home now featuring a spring price improvement, a perfect opportunity to make your move this season and be in for the summer! Designed with a flexible and functional layout, the home offers 2,092 sq ft of versatile living space in the main residence. First floor living includes a spacious primary en suite bedroom, a second bedroom, a shared bath with convenient laundry, plus a bright kitchen, dining area, and comfortable living room. Upstairs, you'll find two additional bedrooms and a full shared bath, providing ample space for family and guests. A walk-out lower level adds 758 more sq ft of flexibility. The property also includes an attached two-car garage with a one-bedroom apartment above, ideal for in-law accommodations, guest space, or potential rental income. Move-in ready with room to personalize, this home presents a fantastic opportunity to add your own style and build equity. Located just around the bend from scenic Bakers Pond, you'll enjoy

offered at

$1,199,000

  • Status: Back on Market
  • Listing ID: 73483696
  • Bedrooms: 5
  • Full Baths: 4
  • Living Area: 2,560 sqft Convert
  • Lot Size: 57,063 sqft Convert
  • Acres: 1.31

Additional Details

Type: Single Family, Single Family Residence

Zip Code: 02653

Parking

Garage: 2

Garage Capacity: 2

Parking Spaces: 6

Rooms and Dimensions

Total Rooms: 10

Has Basement: Yes

Contact: LRG Boston at (617) 233-5800

LRGBOSTON.COM

355 Boylston St. Boston, MA 02116

Map

Photos