Luxury Real Estate Group Boston > Salem > 469 Loring Ave

LRG Boston

(617) 233-5800

355 Boylston St

Boston, Ma 02116

469 Loring Ave

Salem, MA

Property Description

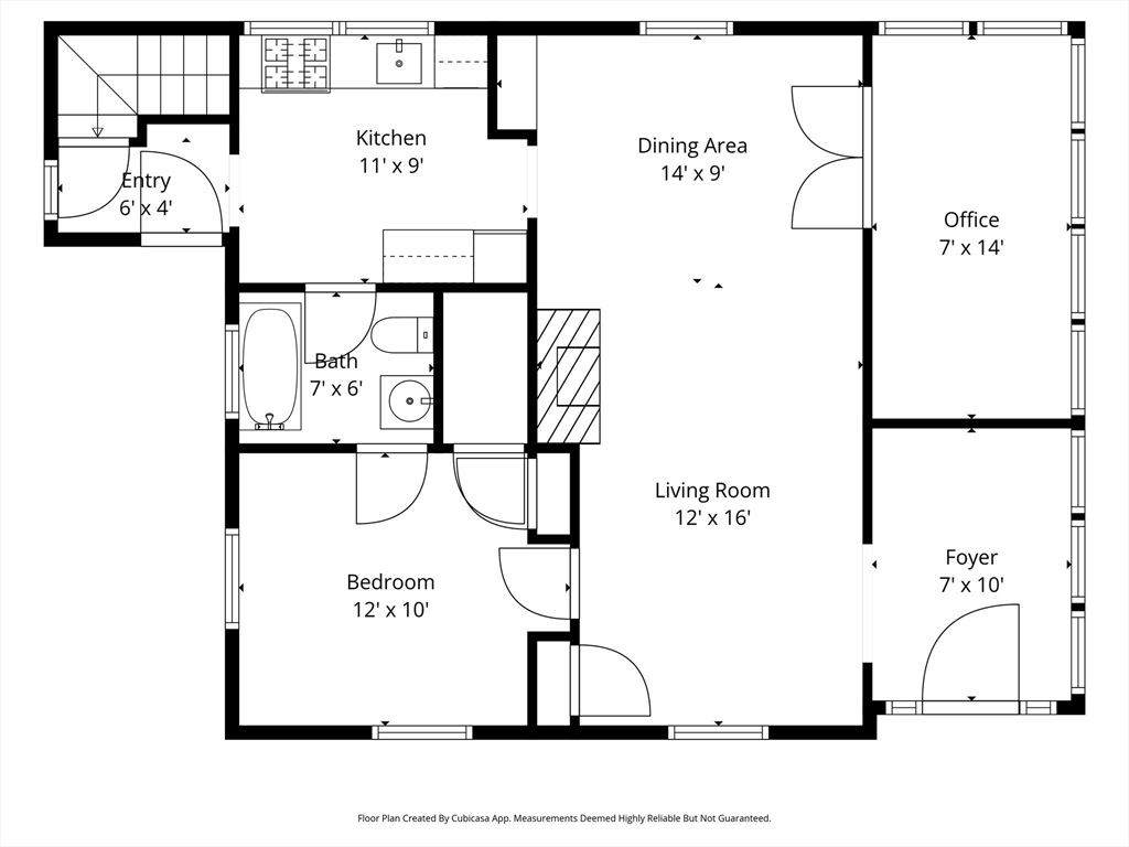
There's an adorable home on the corner of Loring & Chandler that caught your attention. Yes, the cute bungalow with the orange wood shakes! First you noticed the greenhouse & garden. Then you walked through a gate into the fully fenced-in yard w/ garage and onto a large paver patio and wondered about past gatherings. You imagined living close to convenient amenities in Vinnin Square and beaches in Swampscott. It surely felt like more than just a place to rest your head. This started as someone's ideal starter-home. They cared for it by making investments in major components. A new roof in 2022. A new boiler in 2023. Blown-in insulation to keep heating bills low. They freshened up the kitchen w/ a modern/retro look & a classic refrigerator. Their 1st floor office made it possible to work from home, and the space in the basement was utilized as a guest suite w/ its own separate entrance. While it's time to move on, the home is move-in ready. Whose perfect starter-home will this be next?

offered at

$525,000

  • Status: New
  • Listing ID: 73484368
  • Bedrooms: 1
  • Full Baths: 2
  • Living Area: 1,136 sqft Convert
  • Lot Size: 5,001 sqft Convert
  • Acres: 0.11

Additional Details

Type: Single Family, Single Family Residence

Zip Code: 01970

Parking

Garage: 1

Garage Capacity: 6

Parking: Detached, Off Street, Paved

Parking Spaces: 6

Rooms and Dimensions

Total Rooms: 4

Contact: LRG Boston at (617) 233-5800

LRGBOSTON.COM

355 Boylston St. Boston, MA 02116

Map

Photos