Luxury Real Estate Group Boston > Boxborough > 555 Old Harvard Rd

LRG Boston

(617) 233-5800

355 Boylston St

Boston, Ma 02116

555 Old Harvard Rd

Boxborough, MA

Property Description

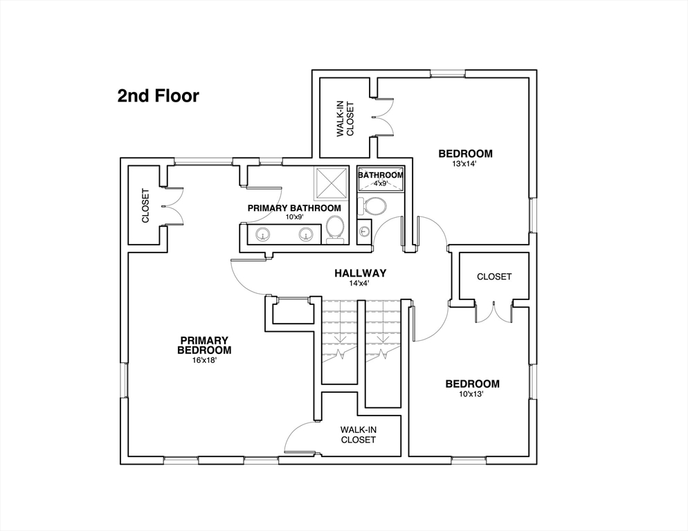
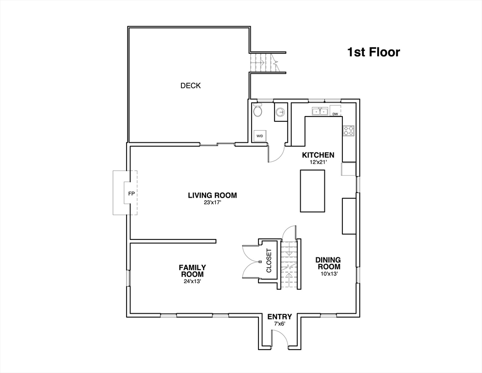
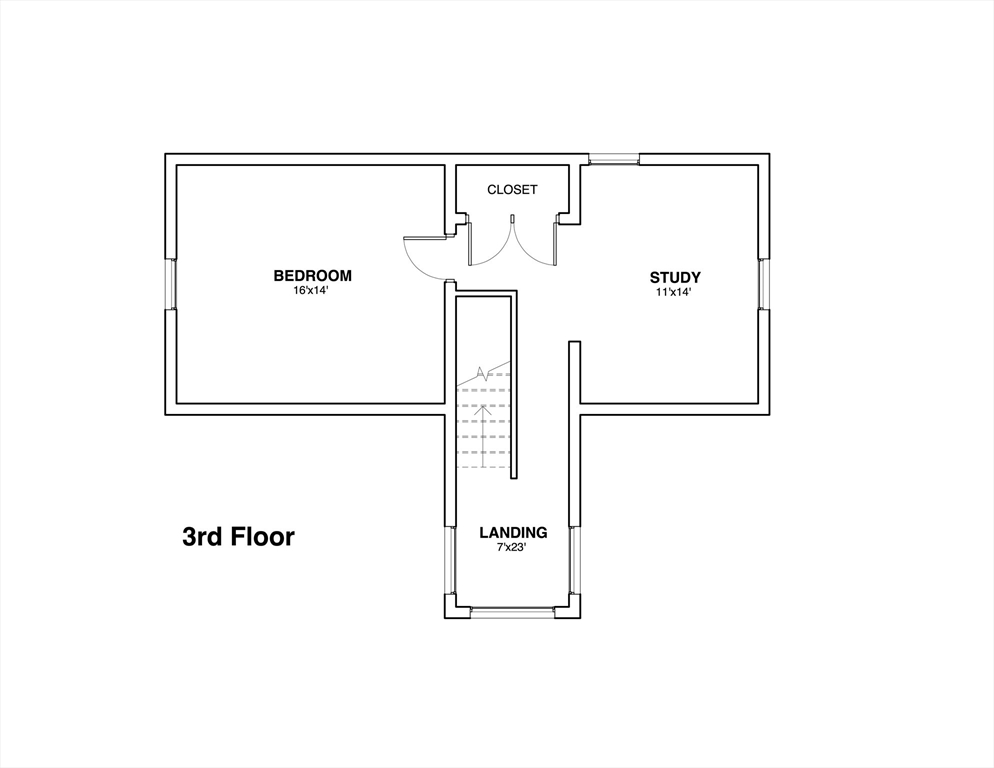
Set along winding, wooded Old Harvard Road, this custom built contemporary blends perfectly with its natural surrounds. Inside, the first level's sun-filled open floor plan features living, dining, family room, and kitchen spaces with hardwood flooring, recessed lighting, crown molding, and high end fixtures. The kitchen boasts marble counters and backsplash, stainless steel appliances, and a large center island with seating. A marble first floor half bath with laundry completes the first floor spaces. A walk up the stairs leads to three bedrooms and two full marble tiled baths. The primary bedroom includes a walk in closet and a two-room bath with walk in marble shower, double vanity, and separate soaking tub. The third level consists of a fourth bedroom and a home office space. Two rooms and a third full bath make up the lower level with access to the two car garage. Enjoy views of the pond through the trees from the elevated deck in back. TOTAL NEW REBUILD in 2023 from foundation up

offered at

$1,299,900

  • Status: New
  • Listing ID: 73484632
  • Bedrooms: 4
  • Full Baths: 3
  • Half Baths: 1
  • Living Area: 3,731 sqft Convert
  • Lot Size: 64,469 sqft Convert
  • Acres: 1.48

Additional Details

Type: Single Family, Single Family Residence

Zip Code: 01719

Levels: Multi/Split

Parking

Garage: 2

Garage Capacity: 10

Parking: Attached, Under, Garage Door Opener, Off Street, Stone/Gravel, Paved

Parking Spaces: 10

Rooms and Dimensions

Total Rooms: 11

Contact: LRG Boston at (617) 233-5800

LRGBOSTON.COM

355 Boylston St. Boston, MA 02116

Map

Photos