Luxury Real Estate Group Boston > Dennis > 38 Lower County

LRG Boston

(617) 233-5800

355 Boylston St

Boston, Ma 02116

38 Lower County

Dennis, MA

Property Description

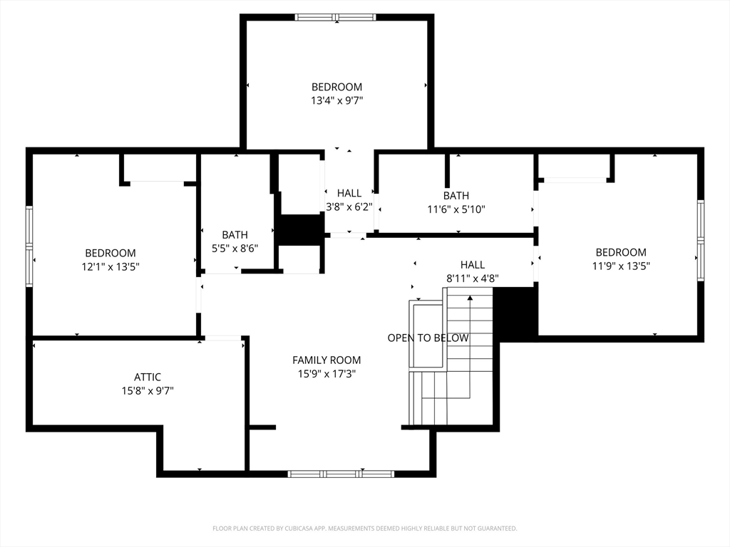
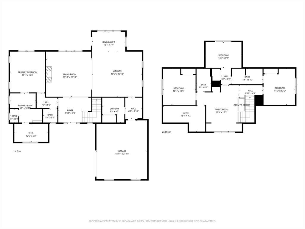
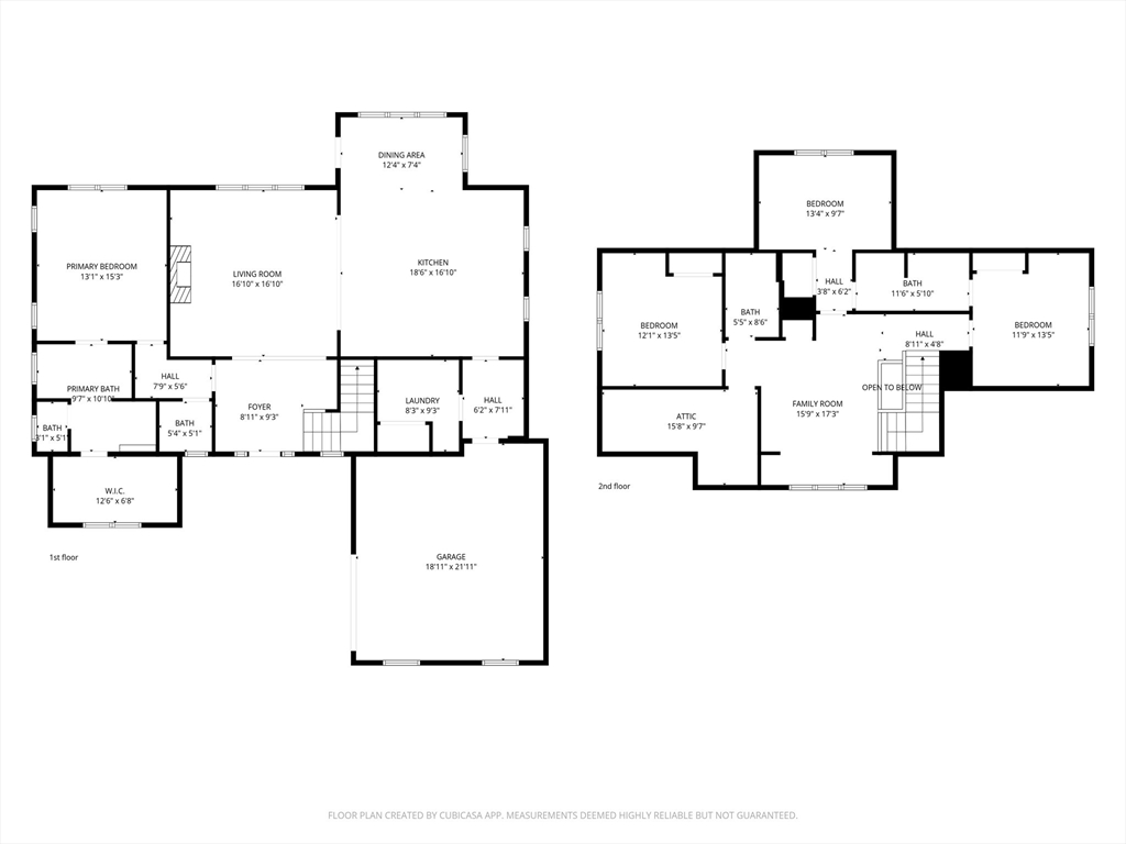
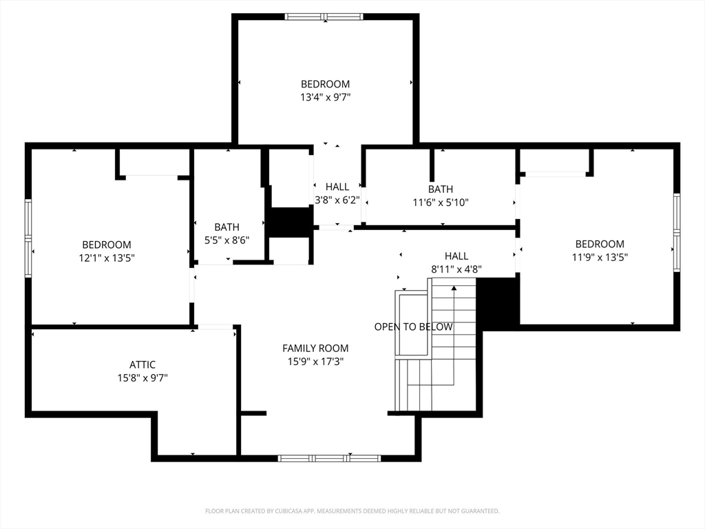
Located in one of Cape Cod’s most desirable areas, this newly constructed, fully furnished coastal residence is just 0.5 miles from beaches and waterfront dining nearby, making it ideal as a second home or investment property. Thoughtfully built by Repurpose Properties in collaboration with their interior designer, the home features custom built-ins, designer lighting, tiled bathrooms, and an electric fireplace within an open-concept living space designed for comfort and entertaining.The first-floor primary suite offers a private retreat with spa-inspired finishes, including a soaking tub. The second level features a versatile loft gathering space, three additional bedrooms, and two full bathrooms.Professionally designed landscaping and a covered porch with a trellis to enhance outdoor living and natural light. Conveniently located near beaches, dining, and coastal amenities, this property delivers refined Cape Cod living with modern luxury and turnkey convenience.

offered at

$1,600,000

  • Listing ID: 73484700
  • Bedrooms: 4
  • Full Baths: 3
  • Half Baths: 1
  • Living Area: 2,567 sqft Convert
  • Lot Size: 38,768 sqft Convert
  • Acres: 0.89

Additional Details

Type: Single Family, Single Family Residence

Area: Dennis Port

Zip Code: 02639

Parking

Garage: 1

Garage Capacity: 5

Parking: Attached, Off Street

Parking Spaces: 5

Rooms and Dimensions

Total Rooms: 7

Contact: LRG Boston at (617) 233-5800

LRGBOSTON.COM

355 Boylston St. Boston, MA 02116

Map

Photos