Luxury Real Estate Group Boston > Boston > 34 Temple Street

LRG Boston

(617) 233-5800

355 Boylston St

Boston, Ma 02116

34 Temple Street

Boston, MA

Property Description

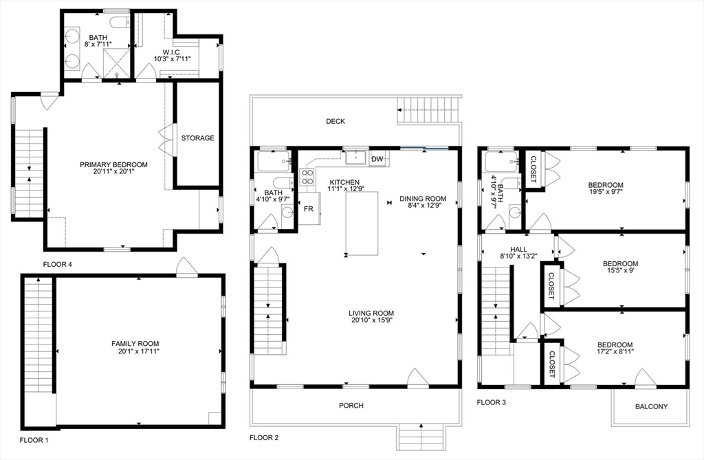
LOWER MILLS MASTERPIECE, newer construction single-family home within a townhouse development benefiting from HOA amneties— just steps to shops, restaurants, and public transit this modern house offers four levels of well-designed living space, featuring an open-concept main floor with beautiful oak flooring, custom seating foyer area, high ceilings, and contemporary finishes throughout. The chef’s kitchen flows seamlessly into the dining and living areas, perfect for entertaining with direct access from dining area out to maintenance free deck offering indoor/outdoor entertaining. The penthouse primary suite provides a private retreat with a spa-like bath and walk-in closet space. Additional 3 bedrooms offer custom closetry and a full bath wrapped in solid stone and tub. With two-car parking and a prime location in one of Boston’s most desirable neighborhoods, just a couple blocks from Central Ave T stop, Steel & Rye and close proximity to downtown makes this home A+ transit friendly

offered at

$879,900

  • Listing ID: 73484735
  • Bedrooms: 4
  • Full Baths: 3
  • Living Area: 2,048 sqft Convert
  • Lot Size: 3,000 sqft Convert
  • Acres: 0.07

Additional Details

Type: Single Family, Single Family Residence

Zip Code: 02126

Parking

Garage Capacity: 2

Parking: Off Street

Parking Spaces: 2

Rooms and Dimensions

Total Rooms: 7

Contact: LRG Boston at (617) 233-5800

LRGBOSTON.COM

355 Boylston St. Boston, MA 02116

Map

Photos