Luxury Real Estate Group Boston > Saugus > 34 Summer St

LRG Boston

(617) 233-5800

355 Boylston St

Boston, Ma 02116

34 Summer St

Saugus, MA

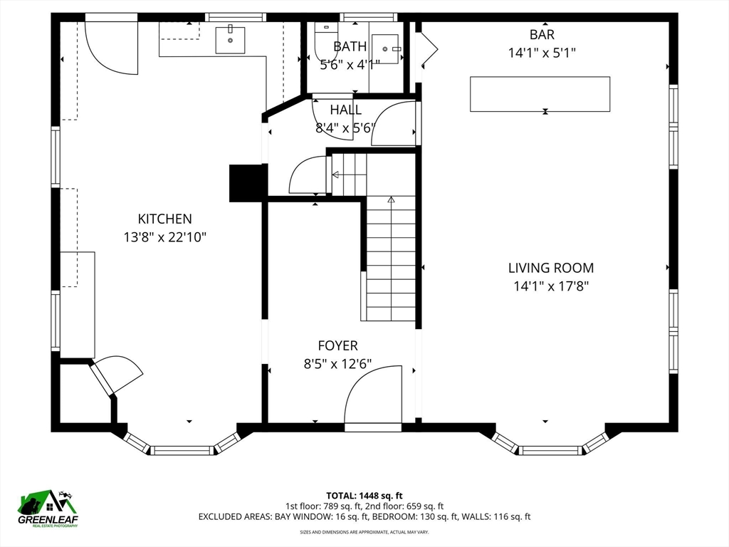
Property Description

Welcome to 34 Summer Street! This classic Colonial-style home offers an opportunity to bring your vision and creativity to life. Featuring 3 bedrooms and 1.5 bathrooms, the property is full of character and ready for updates and renovation. The main level includes a spacious entry with an open living room complete with hardwood flooring. The bright kitchen extends from front to back with exterior access to a generous deck. Upstairs you’ll find a full bath and 3 bedrooms featuring hardwood floors. Set back from the street on a spacious lot, the property offers both privacy and enjoyment of the outdoors in a desirable neighborhood. Commuters will appreciate the convenient location close to major routes including Route 1 and I-95. Located near Stackpole Field and close to local amenities, this property combines location, potential, and opportunity. Additional highlights include the roof being approx.15 yrs old, boiler is 5 years old, and oil tank is newer. Offer Deadline Mon 3/16 12pm.

offered at

$529,000

  • Status: New
  • Listing ID: 73484755
  • Bedrooms: 3
  • Full Baths: 1
  • Half Baths: 1
  • Living Area: 1,728 sqft Convert
  • Lot Size: 14,658 sqft Convert
  • Acres: 0.34

Additional Details

Type: Single Family, Single Family Residence

Zip Code: 01906

Parking

Garage Capacity: 6

Parking: Paved Drive, Off Street

Parking Spaces: 6

Rooms and Dimensions

Total Rooms: 5

Contact: LRG Boston at (617) 233-5800

LRGBOSTON.COM

355 Boylston St. Boston, MA 02116

Map

Photos