Luxury Real Estate Group Boston > Falmouth > 531 Menauhant Rd

LRG Boston

(617) 233-5800

355 Boylston St

Boston, Ma 02116

531 Menauhant Rd

Falmouth, MA

Property Description

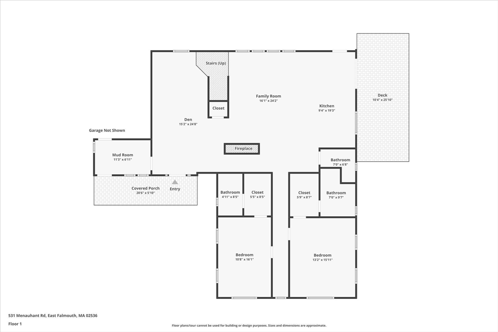
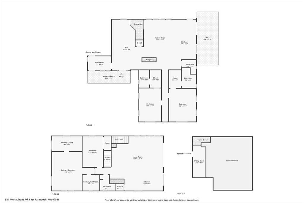
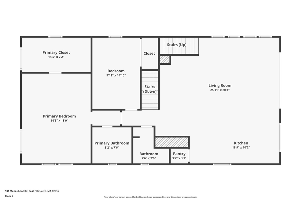
Nestled in the sought-after seaside neighborhood of Menauhant, this fully renovated Cape Cod–style home blends classic coastal charm with modern comfort. Set on half an acre, the property offers privacy while being just a short walk down a path to the sandy shores of Menauhant Beach.The home features 4 bedrooms and 4.5 bathrooms, including three en-suite bedrooms for added comfort and privacy. Enjoy ocean and marsh views from the living room, kitchen, and dining area—perfect for entertaining or relaxing after a day at the beach. Thoughtful renovations and high-end finishes enhance the home’s elegant yet relaxed coastal feel. Enjoy the spacious yard for outdoor gatherings or quiet evenings in the sea breeze. Ideally located just a scenic coastal drive to the restaurants, shops, and nightlife of Main Street in Falmouth, this home offers the perfect balance of tranquility and convenience—ideal as a year-round residence or Cape Cod getaway. Listing Agent is related to Seller.

offered at

$2,625,000

  • Status: New
  • Listing ID: 73484870
  • Bedrooms: 4
  • Full Baths: 4
  • Half Baths: 1
  • Living Area: 3,400 sqft Convert
  • Lot Size: 22,720 sqft Convert
  • Acres: 0.52

Additional Details

Type: Single Family, Single Family Residence

Area: Menauhant

Zip Code: 02536

Parking

Garage: 1

Garage Capacity: 7

Parking: Attached, Stone/Gravel

Parking Spaces: 7

Rooms and Dimensions

Total Rooms: 8

Contact: LRG Boston at (617) 233-5800

LRGBOSTON.COM

355 Boylston St. Boston, MA 02116

Map

Photos