Luxury Real Estate Group Boston > Newton > 46 Acacia Ave

LRG Boston

(617) 233-5800

355 Boylston St

Boston, Ma 02116

46 Acacia Ave

Newton, MA

Property Description

Perfectly situated in the prestigious Chestnut Hill Historic District, this sun-drenched 1930s Tudor offers a seamless blend of timeless character and modern luxury. The open-concept layout features a granite kitchen with custom cabinets and a breakfast bar, flowing into an sun filled living area with classic coffer ceilings, a fireplace, and custom built-ins. Host elegant dinners in the formal dining room with classic wainscoting, or utilize the versatile flex room as a home office. The second floor hosts a spacious primary suite plus three additional bedrooms showcasing original woodwork and hardwood floors. Recent high-end upgrades include a newer driveway, fresh interior paint, and a leveled, fully fenced-in backyard featuring a new fence and private patio. Just steps from the scenic Chestnut Hill Reservoir, this home offers a slate roof, a 2-car garage, and unparalleled access to Boston College, the B/C/D lines, and premier Chestnut Hill shopping. Open House Sat/Sun 12-2

offered at

$2,100,000

  • Status: Price Change
  • Listing ID: 73484975
  • Bedrooms: 4
  • Full Baths: 2
  • Half Baths: 1
  • Living Area: 2,737 sqft Convert
  • Lot Size: 7,620 sqft Convert
  • Acres: 0.17

Additional Details

Type: Single Family, Single Family Residence

Zip Code: 02467

Parking

Garage: 2

Garage Capacity: 6

Parking: Attached, Garage Door Opener, Garage Faces Side, Paved Drive, Off Street, Driveway, Paved

Parking Spaces: 6

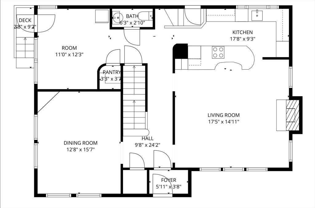
Rooms and Dimensions

Total Rooms: 8

Contact: LRG Boston at (617) 233-5800

LRGBOSTON.COM

355 Boylston St. Boston, MA 02116

Map

Photos