Luxury Real Estate Group Boston > Lowell > 6 Cottage Pl

LRG Boston

(617) 233-5800

355 Boylston St

Boston, Ma 02116

6 Cottage Pl

Lowell, MA

Property Description

Attention investors, contractors, and handymen—this Lowell property presents a prime investment opportunity. In need of TLC, it offers strong potential to add value through renovation, updates, and sweat equity. Whether you’re looking for your next fix-and-flip, rental investment, or renovation project, the possibilities are there.Conveniently located near downtown Lowell’s shops and restaurants, parks and green space including Shedd Park, scenic riverfront walking trails, and with easy access to major highways and commuter routes into Boston, the location appeals to both homeowners and renters alike.

offered at

$349,900

  • Listing ID: 73485260
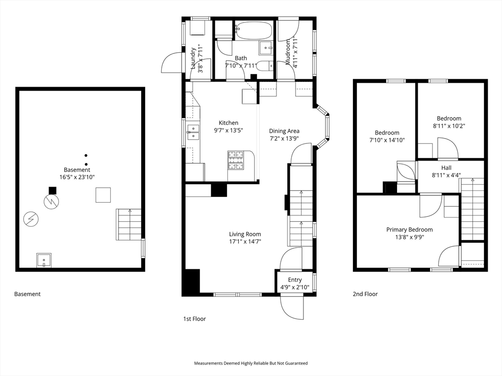
  • Bedrooms: 3
  • Full Baths: 1
  • Living Area: 1,052 sqft Convert
  • Lot Size: 1,742 sqft Convert
  • Acres: 0.04

Additional Details

Type: Single Family, Single Family Residence

Zip Code: 01852

Parking

Garage Capacity: 1

Parking: Paved Drive, Off Street

Parking Spaces: 1

Rooms and Dimensions

Total Rooms: 6

Contact: LRG Boston at (617) 233-5800

LRGBOSTON.COM

355 Boylston St. Boston, MA 02116

Map

Photos