Luxury Real Estate Group Boston > Yarmouth > 62 Quartermaster Row

LRG Boston

(617) 233-5800

355 Boylston St

Boston, Ma 02116

62 Quartermaster Row

Yarmouth, MA

Property Description

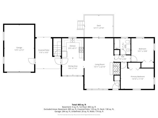
Well main. 2 br ranch style home in Capt's Village. Move in ready with one car att gar. E in kitch with granite, updated appl's. Front to back F/P LR with large din area with newer sliding doors to spacious deck for your back yard barbecues. Both br's are good sized, bright and have California Closets to keep you organized. Recent updates include New FHW gas heating system and 40 gal hot water heater 2026, freshly painted interior 2026, California Closets, new ceramic tile shower back splash and new plumbing fixtures and toilet 2022, all new recessed lighting 2024. A/C split system, roof approx 14 yrs. This home is perfect for downsizing, 1st time home buyer, or retirement. Full dry basement with ample storage. Irrig system. Level lot with fenced in privacy. DO NOT DELAY, see this now and make this your home before someone else does!! Also included: 3 window A/C units, 1 portable A/C unit, kit table w. 4 chairs, 1 yr old gas grill, 2 wall mtd flat screen tv's, & washer & dryer.

offered at

$549,000

  • Status: New
  • Listing ID: 73485907
  • Bedrooms: 2
  • Full Baths: 1
  • Living Area: 984 sqft Convert
  • Lot Size: 13,068 sqft Convert
  • Acres: 0.3

Additional Details

Type: Single Family, Single Family Residence

Area: South Yarmouth

Zip Code: 02664

Parking

Garage: 1

Garage Capacity: 3

Parking: Attached, Garage Door Opener, Storage, Garage Faces Side, Paved Drive, Off Street, Tandem, Driveway, Paved

Parking Spaces: 3

Rooms and Dimensions

Total Rooms: 4

Contact: LRG Boston at (617) 233-5800

LRGBOSTON.COM

355 Boylston St. Boston, MA 02116

Map

Photos