Luxury Real Estate Group Boston > Newton > 88 Warwick Rd #1

LRG Boston

(617) 233-5800

355 Boylston St

Boston, Ma 02116

88 Warwick Rd #1

Newton, MA

Property Description

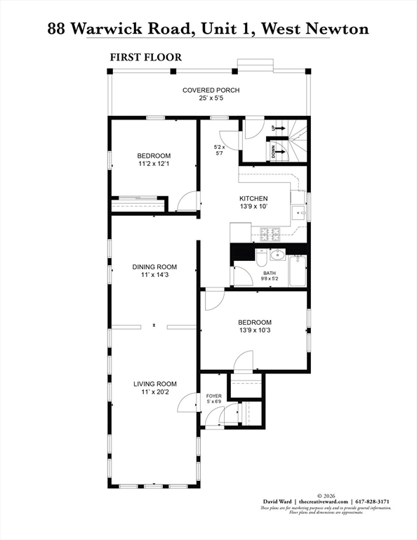
Located in the heart of West Newton, this first-floor 2-bedroom condo in a small 2-unit association offers a rare opportunity to own in one of Newton’s most convenient and desirable neighborhoods. The home features two equal-sized bedrooms, polished wood floors, a modern kitchen, bathroom & laundry. Half the driveway permits two off-street parking spaces. The basement boasts a bonus room & storage space, offering plenty of room to exercise & store. With an efficient and functional layout, this home is suitable for both owner-occupants and investors. West Newton provides easy access for commuting by train, bike, or car, along with nearby shops, parks, and daily amenities. With parking and a walkable location to three of Newton's vibrant villages, West Newton, Newtonville & Nonantum, as well as Abermarle Fields & Gath Pool, this home offers long-term value in a highly sought-after area. Open houses Friday 3/20 to Monday 3/23 - 12 pm to 1 pm. Offers due by 12 pm Monday 3/23

offered at

$649,900

  • Status: New
  • Listing ID: 73486975
  • Bedrooms: 2
  • Full Baths: 1
  • Living Area: 1,326 sqft Convert
  • Lot Size: 7,608 sqft Convert
  • Acres: 0.17

Additional Details

Type: Condo, Condominium

Style: 2/3 Family

Area: West Newton

Zip Code: 02465

HOA Fee: $250

Living Levels: 1

Unit Level: 1

Parking

Garage Capacity: 2

Parking: Off Street

Parking Spaces: 2

Rooms and Dimensions

Total Units: 2

Total Floors: 1

Total Rooms: 5

Contact: LRG Boston at (617) 233-5800

LRGBOSTON.COM

355 Boylston St. Boston, MA 02116

Map

Photos