Luxury Real Estate Group Boston > Haverhill > 1 Macon Avenue

LRG Boston

(617) 233-5800

355 Boylston St

Boston, Ma 02116

1 Macon Avenue

Haverhill, MA

Property Description

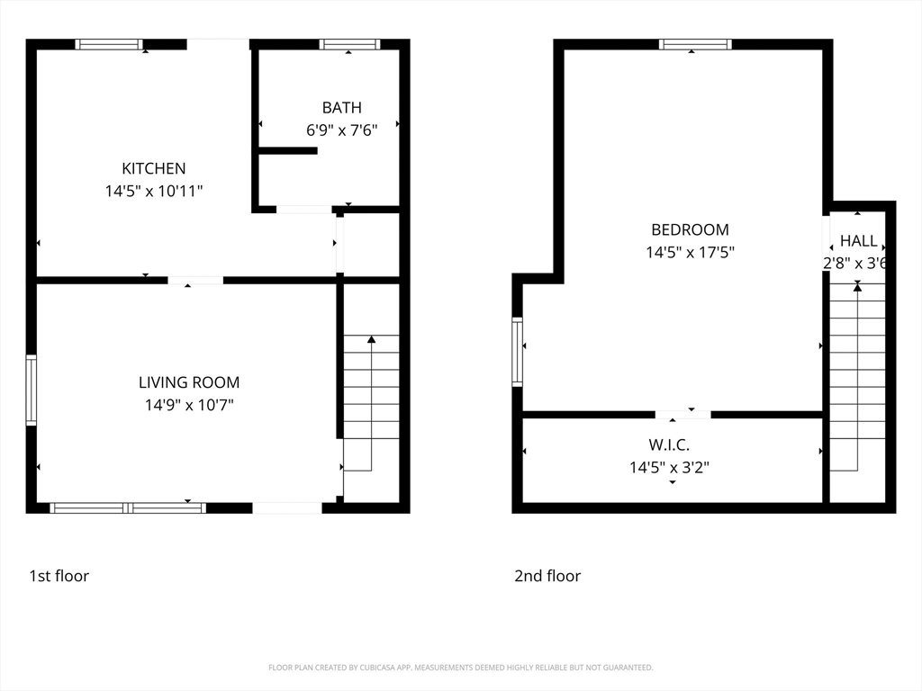
Spacious and versatile two-family home offering excellent income potential and long-term flexibility. This full shed Cape, built circa 1953, features side-by-side duplex units with separate utilities—ideal for owner-occupants or multi-generational living. The larger unit includes 6 rooms with 3–4 bedrooms and 2 full baths, providing generous living space. The smaller unit offers 3 rooms, including a spacious one-bedroom layout with a full bath—perfect for rental income or in-law use. Additional highlights include hardwood floors, bright and spacious rooms, a total of 3 full bathrooms, replacement windows, and a newer roof. The property also features a 2-car garage under and sits on a desirable corner lot. A great opportunity for both investors and homeowners—priced to sell! First showing at Open House, Sat, 3/21, 11-1. Offers due by Mon, 3/23, 5pm. Decision Tues, 3/24, 5pm.

offered at

$575,000

  • Status: New
  • Listing ID: 73487538
  • Bedrooms: 5
  • Full Baths: 3
  • Living Area: 2,394 sqft Convert
  • Lot Size: 8,398 sqft Convert
  • Acres: 0.19

Additional Details

Type: Multi-Family, 2 Family - 2 Units Side by Side

Zip Code: 01830

Levels: 4

Parking

Garage: 2

Garage Capacity: 6

Parking: Paved Drive, Off Street

Parking Spaces: 6

Rooms and Dimensions

Total Units: 2

Total Floors: 4

Total Rooms: 9

Contact: LRG Boston at (617) 233-5800

LRGBOSTON.COM

355 Boylston St. Boston, MA 02116

Map

Photos