Luxury Real Estate Group Boston > Phillipston > Lot 3 Petersham Road

LRG Boston

(617) 233-5800

355 Boylston St

Boston, Ma 02116

Lot 3 Petersham Road

Phillipston, MA

Property Description

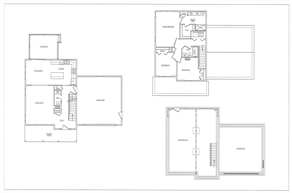
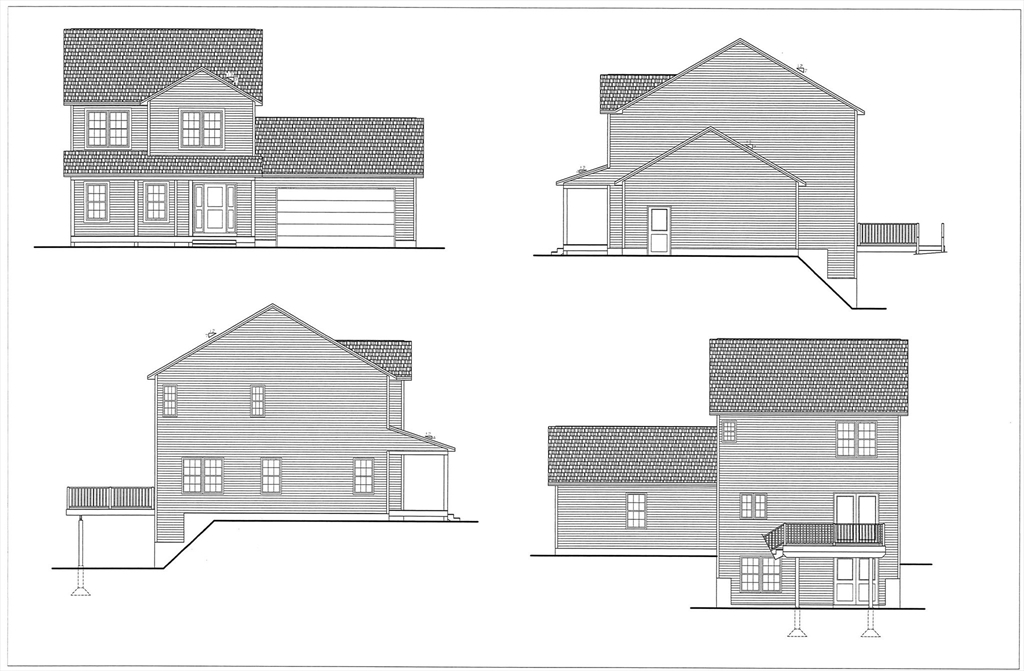
Brand-new, quality-built 3-bedroom, 2.5-bath Colonial set on 4.6 private acres, offering a thoughtfully designed and highly desirable floor plan. This home features 1,652 sq ft of living space & an attached two-car garage. A welcoming farmers porch with low-maintenance composite decking leads into an open-concept 1st floor with impressive 9' ceilings. The kitchen & dining area boast quartz countertops, a center island & a slider that opens to a 12x14 deck overlooking the peaceful, private backyard - perfect for entertaining or relaxing. Upstairs, the primary suite includes a full bath with double vanity, walk-in shower and a large walk-in closet. Two additional bedrooms, a full bath, & a convenient 2nd floor laundry area complete the level. The full walk-out basement with 9' ceilings offers excellent potential for future finished living space. Includes a one-year builder’s warranty. Where quality and comfort come together! Convenient to Route 2 for easy commute East to Boston.

offered at

$579,000

  • Status: New
  • Listing ID: 73487616
  • Bedrooms: 3
  • Full Baths: 2
  • Half Baths: 1
  • Living Area: 1,652 sqft Convert
  • Lot Size: 200,375 sqft Convert
  • Acres: 4.6

Additional Details

Type: Single Family, Single Family Residence

Zip Code: 01331

Parking

Garage: 2

Garage Capacity: 4

Parking: Attached, Garage Door Opener, Garage Faces Side, Off Street, Unpaved

Parking Spaces: 4

Rooms and Dimensions

Total Rooms: 6

Contact: LRG Boston at (617) 233-5800

LRGBOSTON.COM

355 Boylston St. Boston, MA 02116

Map

Photos