Luxury Real Estate Group Boston > Boston > 1439 Tremont St. #1

LRG Boston

(617) 233-5800

355 Boylston St

Boston, Ma 02116

1439 Tremont St. #1

Boston, MA

Property Description

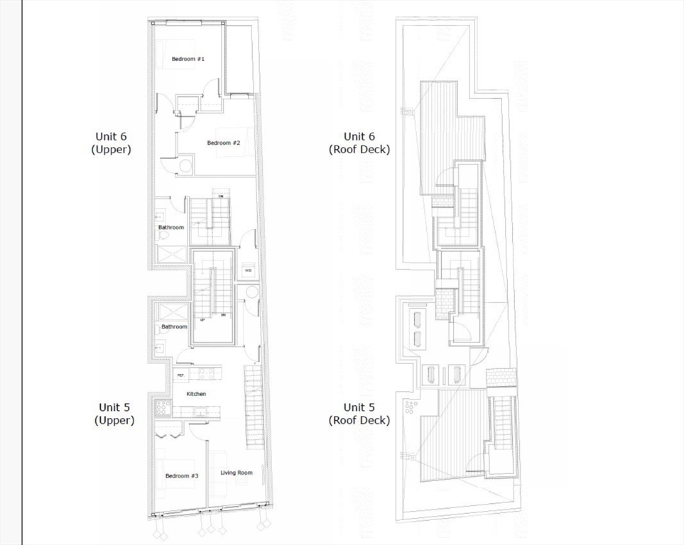
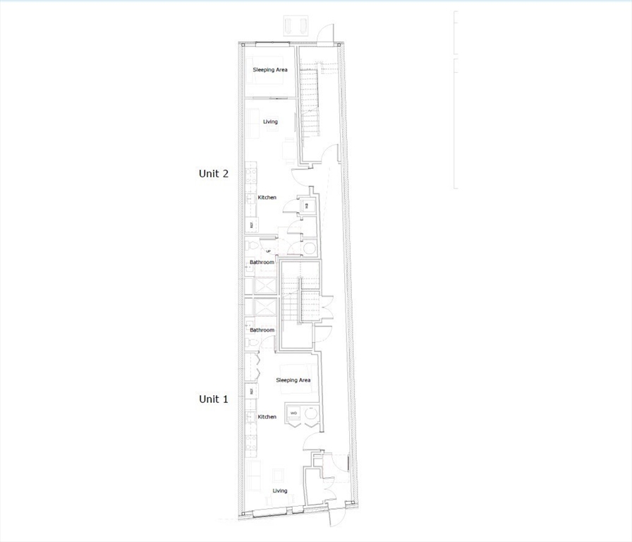
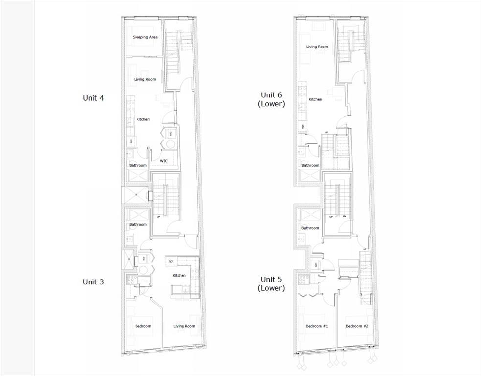
Be the first to live in this spectacular new construction brownstone, offering a luxury feel in the heart of Mission Hill. Just steps away from many foodie spots, convenience stores, and the MBTA Orange Line. This particular unit is a 1bed,1bath featuring a brand new kitchen with stainless steel appliances, in-unit washer and dryer, floor to ceiling windows, and hardwood floors. Security deposit is required and can only be negotiated on a case-by-case basis. Dogs are allowed on a case-by case basis for an additional $200/month and cats are allowed for an additional $150/month. Tenants will be responsible for all utilities including but not limited to water and sewer payments. Still months away from completion, please refer to progress photos and floor plans.

offered at

$3,800

  • Status: New
  • Listing ID: 73487720
  • Bedrooms: 1
  • Full Baths: 1
  • Living Area: 535 sqft Convert
  • Lot Size: 535 sqft Convert

Additional Details

Type: Rental, Apartment

Zip Code: 02120

Unit Level: 2

Rooms and Dimensions

Total Rooms: 3

Contact: LRG Boston at (617) 233-5800

LRGBOSTON.COM

355 Boylston St. Boston, MA 02116

Map

Photos