Luxury Real Estate Group Boston > Somerville > 43-45 Grove Street

LRG Boston

(617) 233-5800

355 Boylston St

Boston, Ma 02116

43-45 Grove Street

Somerville, MA

Property Description

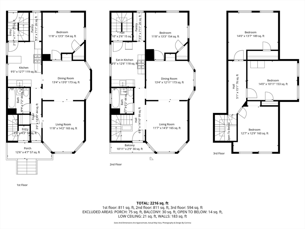
Davis Square Two Family!!! Just 5 minutes from Tufts University, this well-maintained multi family home is perfectly situated on the corner of a popular rail trail and only steps from vibrant Davis Square and its wonderful atmosphere and many amazing restaurants. Less than a mile from green line stops of Gilman and Magoun Square and the MBTA and Blue Bikes roll up to your front door. Filled with natural light, this property offers strong rental potential and a fantastic opportunity for investors or owner-occupants alike. Property has its own driveway for two tandem cars as well as pay by app lot across the street. Come and experience 43-45 Grove St. in person and see for yourself what this property has to offer! Showings at Open House ONLY Saturday 3/21 from 12pm to 2pm.

offered at

$1,399,000

  • Status: New
  • Listing ID: 73488419
  • Bedrooms: 5
  • Full Baths: 2
  • Living Area: 2,358 sqft Convert

Additional Details

Type: Multi-Family, 2 Family - 2 Units Up/Down

Area: Davis Square

Zip Code: 02144

Levels: 3

Parking

Garage Capacity: 2

Parking: Off Street, Tandem, On Street

Parking Spaces: 2

Rooms and Dimensions

Total Units: 2

Total Floors: 3

Total Rooms: 11

Contact: LRG Boston at (617) 233-5800

LRGBOSTON.COM

355 Boylston St. Boston, MA 02116

Map

Photos