Luxury Real Estate Group Boston > Lynn > 82 Fayette St

LRG Boston

(617) 233-5800

355 Boylston St

Boston, Ma 02116

82 Fayette St

Lynn, MA

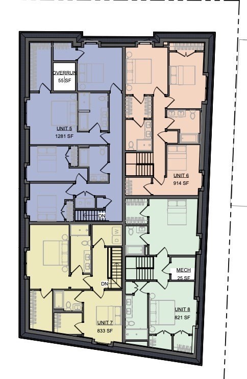
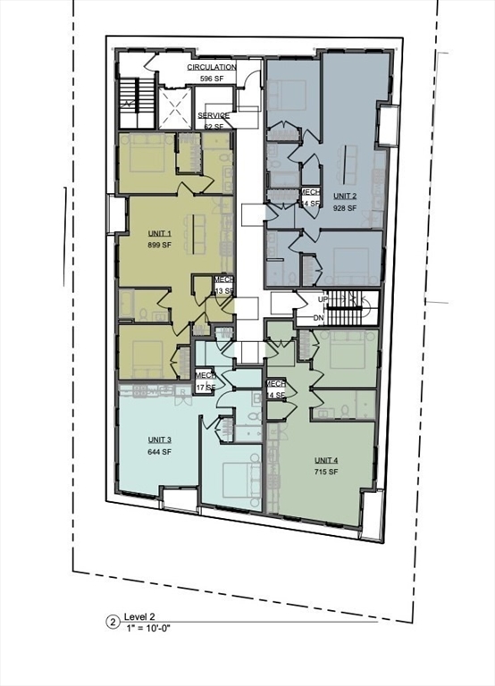
Property Description

Exceptional shovel-ready development at 82 Fayette Street, located in one of Lynn’s fastest-growing and revitalizing areas. This fully permitted 8-unit new construction project already has foundation work in progress, significantly reducing timeline and upfront risk.The thoughtfully designed building features four well-appointed single-level units on the first floor and four expansive duplex residences above, offering a desirable mix of 1, 2, 3, and 4-bedroom layouts to capture a wide tenant and buyer pool.All approvals are secured, allowing immediate continuation of construction. This is a rare opportunity to deliver modern, high-end housing in a market with strong rental demand and continued appreciation.Positioned for maximum return, this project is ideal for investors seeking long-term cash flow, condo conversion potential, or resale profit in a prime location with proven growth trajectory.

offered at

$870,000

  • Status: New
  • Listing ID: 73488526
  • Bedrooms: 10
  • Full Baths: 10
  • Living Area: 12,612 sqft Convert
  • Lot Size: 4,300 sqft Convert
  • Acres: 0.1

Additional Details

Type: Multi-Family, 5-9 Family

Zip Code: 01902

Levels: 6

Parking

Garage Capacity: 16

Parking: Paved Drive

Parking Spaces: 16

Rooms and Dimensions

Total Units: 8

Total Floors: 6

Total Rooms: 22

Contact: LRG Boston at (617) 233-5800

LRGBOSTON.COM

355 Boylston St. Boston, MA 02116

Map

Photos