Luxury Real Estate Group Boston > North Attleboro > 338 Mount Hope

LRG Boston

(617) 233-5800

355 Boylston St

Boston, Ma 02116

338 Mount Hope

North Attleboro, MA

Property Description

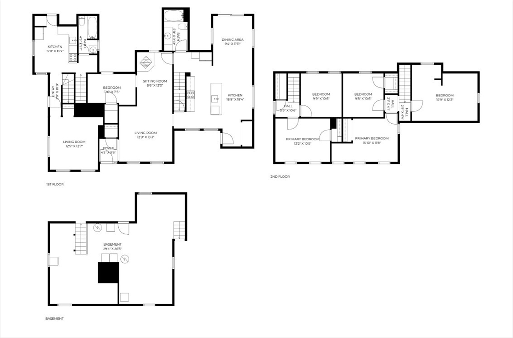
Enjoy this duplex style home just one property away from a beautiful 122-acre pond perfect for swimming, boating, water skiing and fishing. Unit 1 features a spacious, light-filled kitchen/dining room with a large island, living room with hardwood floors, and a versatile bonus room ideal for a home office or flex space. The second floor offers 2BR + an additional bonus area. Unit 2 features a kitchen and living area on the 1st-floor & 2BRs upstairs Enjoy the expansive, flat, fenced-in backyard complete with a deck, patio, and fire pit; an ideal setting for entertaining, relaxing, or enjoying time with family and pets. The property also includes a large shed and ample and separate driveways. Recent updates include newer furnaces, high-efficiency hot water systems. Laundry for both units. Conveniently located with easy access to Route 95, this east-facing property offers both comfort and accessibility. SATURDAY (3/21) Open House 1PM-2PM, SUNDAY (3/22) Open House 12PM-1PM.

offered at

$624,900

  • Status: New
  • Listing ID: 73488570
  • Bedrooms: 4
  • Full Baths: 2
  • Living Area: 2,472 sqft Convert
  • Lot Size: 17,866 sqft Convert
  • Acres: 0.41

Additional Details

Type: Multi-Family, 2 Family - 2 Units Side by Side

Zip Code: 02760

Levels: 4

Parking

Garage Capacity: 6

Parking Spaces: 6

Rooms and Dimensions

Total Units: 2

Total Floors: 4

Total Rooms: 8

Contact: LRG Boston at (617) 233-5800

LRGBOSTON.COM

355 Boylston St. Boston, MA 02116

Map

Photos