Luxury Real Estate Group Boston > North Reading > 250-402 Martin's Landing #402

LRG Boston

(617) 233-5800

355 Boylston St

Boston, Ma 02116

250-402 Martin's Landing #402

North Reading, MA

Property Description

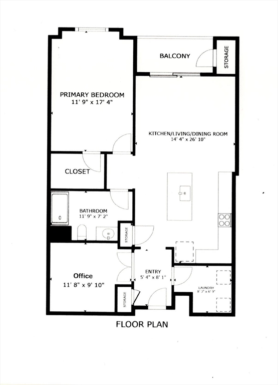
Welcome to "MARTINS LANDING", NORTH READING'S NEWEST PREMIER 55+ COMMUNITY. A PENTHOUSE UNIT RARELY AVAILABLE AT This spacious unit has many upgrades including flooring, cabinets, water filtration sys & custom blinds Natural tones of wood flooring flow throughout the kitchen, den and living/dining areas. The bright kitchen has both upgraded cabinets with under cabinet lighting & quartz countertops, a center island with deep stainless steel sink. The living room offers space for comfortably relaxing as well as a dining area for sit down meals. The primary bedroom is quite large with walk-in closet and shelving. This unit also has a Den which offers many possibilities for home office or guest area. The full bath has a walk in shower and Laundry is located within the unit. The seller is leaving the appliances as gifts, custom blinds & Water filtration system. Martins Landing has a club house with fitness room and rentable event room with kitchen.MOVE IN READY

offered at

$474,900

  • Status: New
  • Listing ID: 73490209
  • Bedrooms: 1
  • Full Baths: 1
  • Living Area: 1,027 sqft Convert

Additional Details

Type: Condo, Condominium

Style: High-Rise

Zip Code: 01864

HOA Fee: $381

Living Levels: 1

Unit Level: 4

Parking

Garage Capacity: 2

Parking: Off Street, Common

Parking Spaces: 2

Rooms and Dimensions

Total Units: 502

Total Floors: 1

Total Rooms: 4

Contact: LRG Boston at (617) 233-5800

LRGBOSTON.COM

355 Boylston St. Boston, MA 02116

Map

Photos