Luxury Real Estate Group Boston > Lawrence > 439-441 High St

LRG Boston

(617) 233-5800

355 Boylston St

Boston, Ma 02116

439-441 High St

Lawrence, MA

Property Description

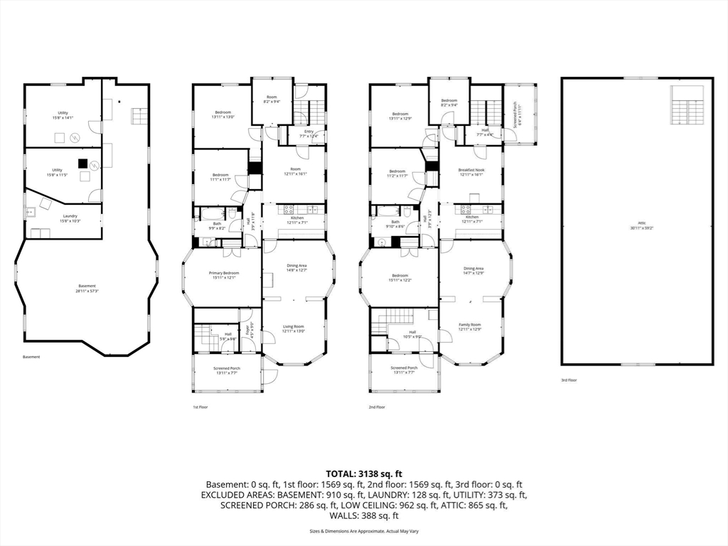
Rare generational offering, both units—same family owned and occupied for generations. Well-maintained 2-family with approx. 3,300+ sq ft, 6 beds, 2 full baths, galley kitchens, screened porches bonus room/office and strong layout flexibility for owner-occupants or investors. Both units offer spacious rooms and solid rental potential. Property reflects long-term pride of ownership with classic early 20th-century construction. Enjoy a private yard with storage shed—ideal for outdoor use and added convenience. Separate utilities (buyer and/or buyers agent to verify). 2 car parking paved driveway. Convenient location with access to major routes, shopping, and public transit.

offered at

$809,000

  • Listing ID: 73490880
  • Bedrooms: 6
  • Full Baths: 2
  • Living Area: 3,306 sqft Convert
  • Lot Size: 6,022 sqft Convert
  • Acres: 0.14

Additional Details

Type: Multi-Family, 2 Family - 2 Units Up/Down

Zip Code: 01841

Levels: 2

Parking

Garage Capacity: 2

Parking: Paved Drive, Off Street, Paved

Parking Spaces: 2

Rooms and Dimensions

Total Units: 2

Total Floors: 2

Total Rooms: 12

Contact: LRG Boston at (617) 233-5800

LRGBOSTON.COM

355 Boylston St. Boston, MA 02116

Map

Photos