Luxury Real Estate Group Boston > Boston > 9-11 Oliva Rd

LRG Boston

(617) 233-5800

355 Boylston St

Boston, Ma 02116

9-11 Oliva Rd

Boston, MA

Property Description

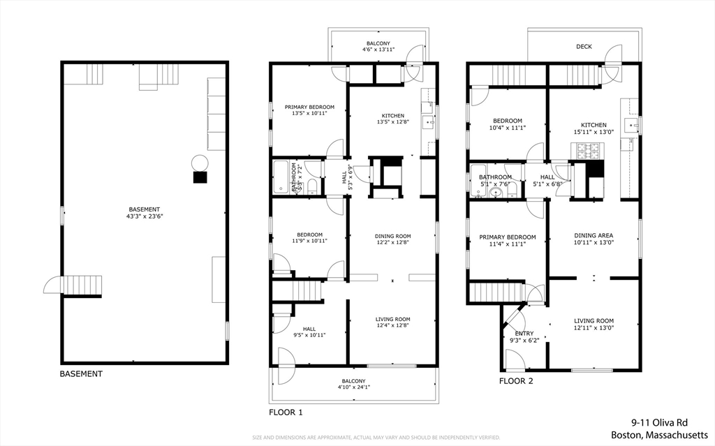
Incredible opportunity for an owner-occupant or investor in the desirable Oak Square neighborhood of Brighton. Two-family property featuring a top floor unit with 3 bedrooms and 1 full bath, and a lower unit offering 2 bedrooms and 1 full bath. Both units are bright and spacious with high ceilings and strong natural light. Laundry located in the basement for both units. Mechanicals are in great condition. Three designated driveway parking spaces plus additional street parking with no permit required. Private backyard space ideal for outdoor enjoyment. Upper unit lease ends in May, offering flexibility for owner-occupants or investors. Convenient location close to shops, restaurants, public transportation, and major routes.

offered at

$1,075,000

  • Status: Price Change
  • Listing ID: 73491277
  • Bedrooms: 5
  • Full Baths: 2
  • Living Area: 2,350 sqft Convert
  • Lot Size: 4,386 sqft Convert
  • Acres: 0.1

Additional Details

Type: Multi-Family, Multi Family

Area: Brighton

Zip Code: 02135

Levels: 2

Parking

Garage Capacity: 3

Parking: Paved,Off Street

Parking Spaces: 3

Rooms and Dimensions

Total Units: 2

Total Floors: 2

Total Rooms: 11

Has Basement: Yes

Contact: LRG Boston at (617) 233-5800

LRGBOSTON.COM

355 Boylston St. Boston, MA 02116

Map

Photos