Luxury Real Estate Group Boston > Falmouth > 15 Ingleside Dr

LRG Boston

(617) 233-5800

355 Boylston St

Boston, Ma 02116

15 Ingleside Dr

Falmouth, MA

Property Description

Experience coastal LUXURY at this breathtaking NEW build in East Falmouth’s Seacoast Shores! This masterfully built 4BR/4.5BA custom home offers ~3,600 sq ft of luxury living, including a finished lower level featuring 9-foot ceilings and expansive recreation space. The heart of the home is a sophisticated chef’s kitchen anchored by a massive 10-foot island, custom cabinetry, and an open-concept flow designed for seamless entertaining. Dramatic 9-foot ceilings throughout the main level create an airy, voluminous ambiance. The entire home is outfitted with custom closets for high-end organization. Retreat to private bedrooms with balconies or ascend to the showstopping rooftop deck to enjoy panoramic views of the Eel River. Outdoor enthusiasts will love being less than 0.25 miles to Bayside Beach for the ultimate Cape Cod lifestyle. Includes a 1-car garage and the option to join the Seacoast Shores Clubhouse for waterfront dining, pool, and tennis. A MUST SEE!

offered at

$2,075,000

  • Listing ID: 73491414
  • Bedrooms: 4
  • Full Baths: 4
  • Half Baths: 1
  • Living Area: 3,584 sqft Convert
  • Lot Size: 7,320 sqft Convert
  • Acres: 0.17

Additional Details

Type: Single Family, Single Family Residence

Area: East Falmouth

Zip Code: 02536

Parking

Garage: 1

Garage Capacity: 7

Parking: Attached, Off Street

Parking Spaces: 7

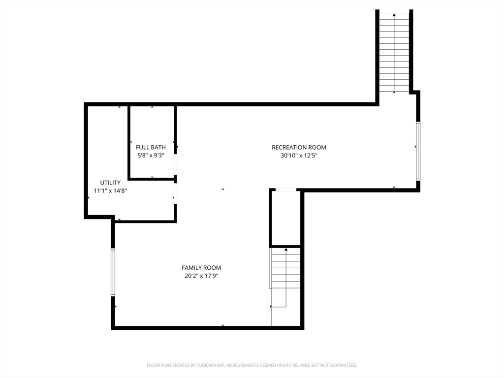
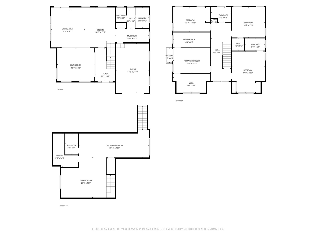
Rooms and Dimensions

Total Rooms: 9

Contact: LRG Boston at (617) 233-5800

LRGBOSTON.COM

355 Boylston St. Boston, MA 02116

Map

Photos