Luxury Real Estate Group Boston > Pepperell > 58 Lowell Rd

LRG Boston

(617) 233-5800

355 Boylston St

Boston, Ma 02116

58 Lowell Rd

Pepperell, MA

Property Description

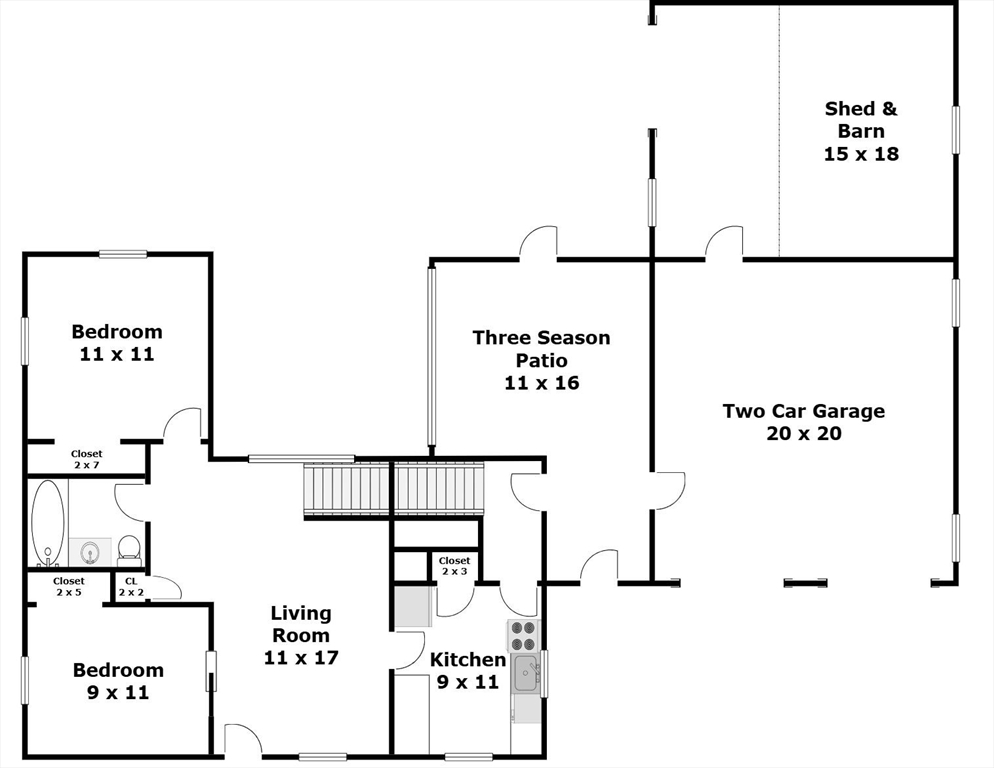
Opportunity to build equity at 58 Lowell Street in Pepperell. This 3+ bedroom, 1.5 bath home features strong fundamentals including a newer roof, new vinyl siding, updated heating system, solid electrical panel, and public water and sewer. 3-car garage and generous yard offer additional flexibility.The home is in need of interior renovation and cosmetic updating but offers a functional layout with potential for expanded bedroom configuration. Ideal for contractors, investors, or buyers looking to customize and create value. Sold as-is.

offered at

$399,900

  • Status: New
  • Listing ID: 73491846
  • Bedrooms: 3
  • Full Baths: 1
  • Half Baths: 1
  • Living Area: 1,475 sqft Convert
  • Lot Size: 15,002 sqft Convert
  • Acres: 0.34

Additional Details

Type: Single Family, Single Family Residence

Zip Code: 01463

Parking

Garage: 3

Garage Capacity: 7

Parking: Attached, Workshop in Garage, Oversized, Off Street

Parking Spaces: 7

Rooms and Dimensions

Total Rooms: 7

Contact: LRG Boston at (617) 233-5800

LRGBOSTON.COM

355 Boylston St. Boston, MA 02116

Map

Photos