Luxury Real Estate Group Boston > Holyoke > 69-71 Elmwood Ave

LRG Boston

(617) 233-5800

355 Boylston St

Boston, Ma 02116

69-71 Elmwood Ave

Holyoke, MA

Property Description

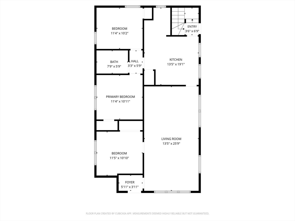
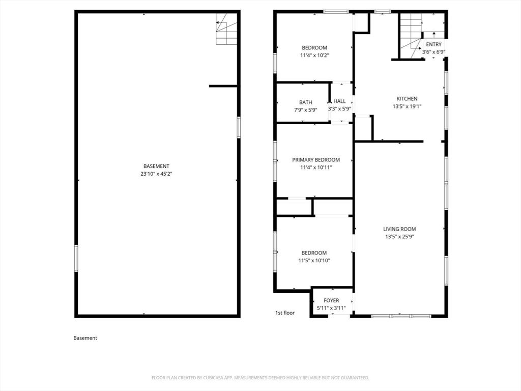
Updated turnkey 2-family in Elmwood neighborhood! The first-floor unit is vacant and ready to go! Providing immediate move-in or rental opportunity. Each unit features 3 bedrooms, 1 full bath, and spacious open-concept living and dining layout, along with updated kitchens with granite countertops and new cabinetry. Major improvements (APO) include a NEW roof, NEW heating systems, and NEW hot water tanks. Separate utilities for each unit add convenience and efficiency!Additional features include a clean spacious basement, washer and dryer hookups on the second floor, a two-car garage, and off-street parking. The large unfinished attic offers excellent potential for additional living space or storage! Lead certificate available for the first-floor unit! Ideal opportunity to live in one unit while generating rental income, or add a solid asset to your investment portfolio. OPEN HOUSE SAT 11:30-1PM!

offered at

$419,900

  • Listing ID: 73491987
  • Bedrooms: 6
  • Full Baths: 2
  • Living Area: 2,340 sqft Convert
  • Lot Size: 5,001 sqft Convert
  • Acres: 0.11

Additional Details

Type: Multi-Family, Multi Family

Area: Elmwood

Zip Code: 01040

Levels: 2

Parking

Garage: 2

Garage Capacity: 4

Parking: Paved Drive, Off Street, Paved

Parking Spaces: 4

Rooms and Dimensions

Total Units: 2

Total Floors: 2

Total Rooms: 12

Contact: LRG Boston at (617) 233-5800

LRGBOSTON.COM

355 Boylston St. Boston, MA 02116

Map

Photos