Luxury Real Estate Group Boston > Boston > 12 Chelmsford St

LRG Boston

(617) 233-5800

355 Boylston St

Boston, Ma 02116

12 Chelmsford St

Boston, MA

Property Description

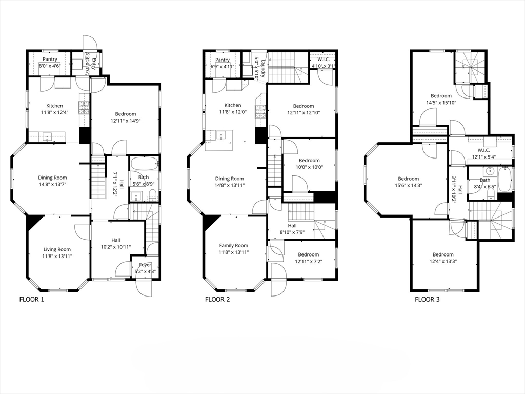
Welcome to 12 Chelmsford Street, a classic Philly-style multi-family in the heart of Dorchester’s Adams Village/Neponset neighborhood, one of the few remaining. This thoughtfully maintained and updated property offers two levels for each unit in the classic Philly style with modern updates to kitchens and baths. Rare opportunity for investors or owner-occupants seeking both space and convenience. Unit 1 features 3 Bed, with open floor plan from Kitchen to Dining to Living room, spacious and light filled. Second floor offers 3 Bedrooms plus a bonus office or nursery, the lower-level flows with open concept kitchen to living space, and upstairs lays out three generous sized bedrooms with a primary that features a built-out walk-in closet. Both units are tenanted at will, with flexibility for extension. In-Unit Washer and Dryer for each unit, off street parking tandem for up to 3 cars. Location is spectacular, walking distance to all the shops and restaurants, easy access to I-93 and T.

offered at

$1,199,000

  • Status: New
  • Listing ID: 73492329
  • Bedrooms: 6
  • Full Baths: 2
  • Living Area: 3,725 sqft Convert
  • Lot Size: 4,276 sqft Convert
  • Acres: 0.1

Additional Details

Type: Multi-Family, Multi Family

Zip Code: 02122

Levels: 4

Parking

Garage Capacity: 3

Parking: Paved Drive

Parking Spaces: 3

Rooms and Dimensions

Total Units: 2

Total Floors: 4

Total Rooms: 13

Contact: LRG Boston at (617) 233-5800

LRGBOSTON.COM

355 Boylston St. Boston, MA 02116

Map

Photos