Luxury Real Estate Group Boston > Haverhill > 116 Towne Hill Rd

LRG Boston

(617) 233-5800

355 Boylston St

Boston, Ma 02116

116 Towne Hill Rd

Haverhill, MA

Property Description

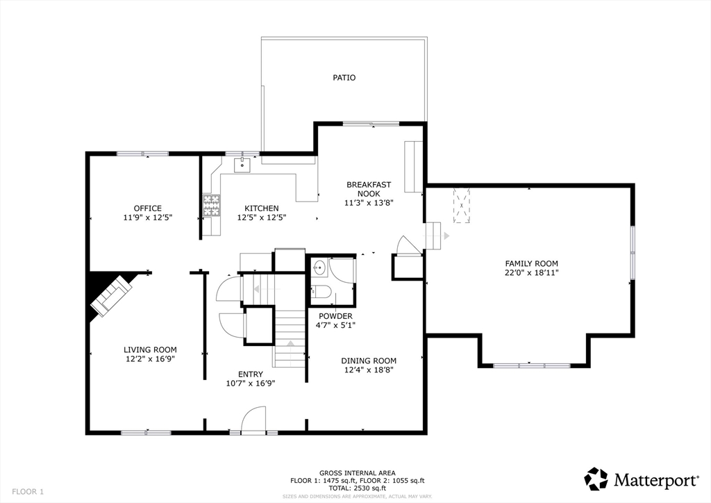
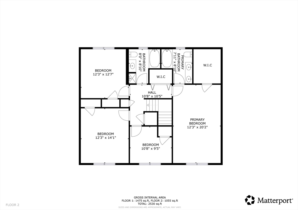
Welcome to this stately 4-bedroom Colonial located in Bradford at Persimmon Woods. Enjoy the serene landscape that beautifully overlooks the 17th hole at Bradford Country Club. This sun-filled home features a renovated eat-in kitchen with white cabinetry, stone countertops, stainless steel appliances, complete with a pot filler! It opens to a spacious deck with stunning golf course views. Flexible main level with home office, formal dining, fireplaced formal living room and expansive skylit family room. Upstairs offers four bedrooms including a primary suite with walk-in closet and en-suite bath. Attached 2-car garage, hardwood floors, and spectacular views make this a rare opportunity in a sought-after neighborhood. Unfinished basement and walk-up attic offering expansion potential.

offered at

$824,900

  • Status: New
  • Listing ID: 73492333
  • Bedrooms: 4
  • Full Baths: 2
  • Half Baths: 1
  • Living Area: 2,724 sqft Convert
  • Lot Size: 12,249 sqft Convert
  • Acres: 0.28

Additional Details

Type: Single Family, Single Family Residence

Zip Code: 01835

HOA Fee: $100

Parking

Garage: 2

Garage Capacity: 6

Parking: Attached, Paved Drive, Off Street, Paved

Parking Spaces: 6

Rooms and Dimensions

Total Rooms: 10

Contact: LRG Boston at (617) 233-5800

LRGBOSTON.COM

355 Boylston St. Boston, MA 02116

Map

Photos