Luxury Real Estate Group Boston > Wareham > 4 Hatchery Ln

LRG Boston

(617) 233-5800

355 Boylston St

Boston, Ma 02116

4 Hatchery Ln

Wareham, MA

Property Description

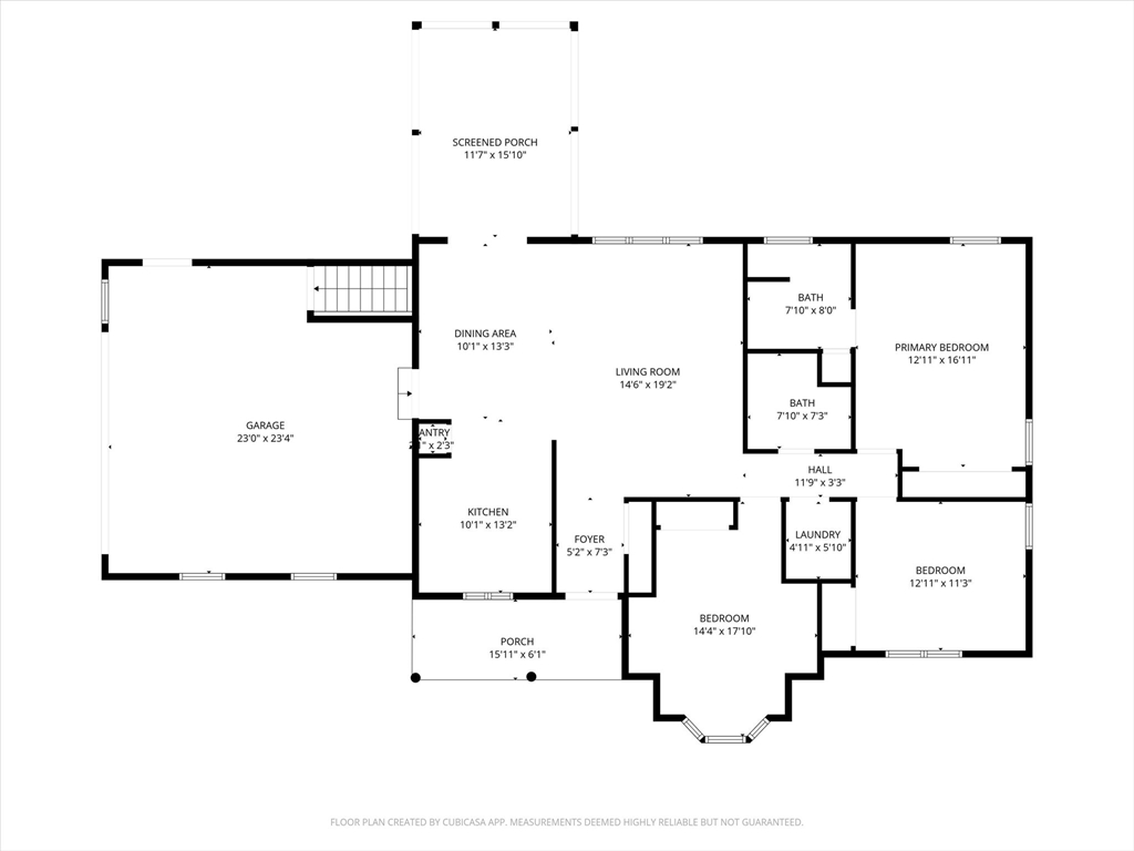
This single family home, constructed in the 2000, offers a well-established dwelling for discerning ownership. Within its 1574 square feet of living space, this residence provides an environment conducive to both relaxed daily existence and entertaining. The three bedrooms offer private havens for repose and rejuvenation, each presenting a dedicated space for personal comfort and tranquility. Two full bathrooms provide essential convenience, designed to accommodate daily routines and privacy. The expansive lot, encompassing 47480 square feet, offers a generous expanse of outdoor potential, inviting opportunities for personal landscaping visions or simply enjoy. A two-space garage provides secure accommodation for vehicles and offers supplementary storage solutions, enhancing the practicality of the property.Showings start at Open House on Sunday.

offered at

$595,000

  • Status: New
  • Listing ID: 73492446
  • Bedrooms: 3
  • Full Baths: 2
  • Living Area: 1,574 sqft Convert
  • Lot Size: 47,480 sqft Convert
  • Acres: 1.09

Additional Details

Type: Single Family, Single Family Residence

Area: West Wareham

Zip Code: 02576

Parking

Garage: 2

Garage Capacity: 6

Parking: Attached, Off Street

Parking Spaces: 6

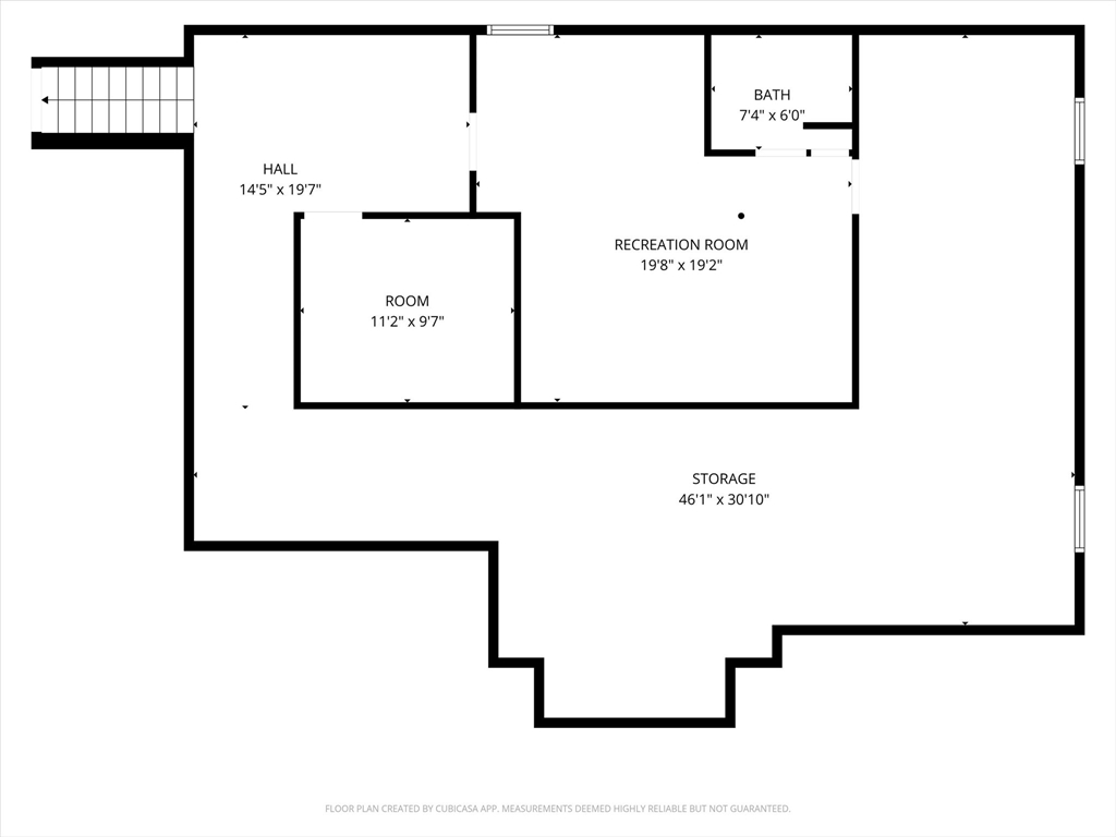
Rooms and Dimensions

Total Rooms: 5

Contact: LRG Boston at (617) 233-5800

LRGBOSTON.COM

355 Boylston St. Boston, MA 02116

Map

Photos