Luxury Real Estate Group Boston > Fitchburg > 40 Orange Street

LRG Boston

(617) 233-5800

355 Boylston St

Boston, Ma 02116

40 Orange Street

Fitchburg, MA

Property Description

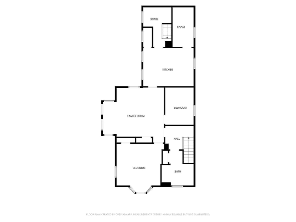
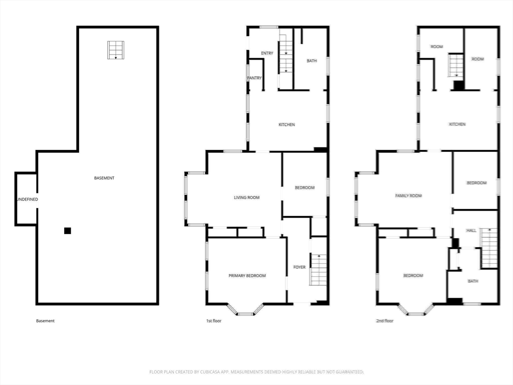
Proudly owned by the same family for 56 years, this well-loved two-family home offers multi-generational flexibility, lasting memories, and strong income potential. Set stately on the lot, the property features a 7-year-old Mansard roof and a fenced private patio for outdoor enjoyment. Each unit provides flexible living space with its own kitchen, pantry, and laundry hookups. The first-floor unit offers 2 bedrooms, while the second-floor features 3 bedrooms, both with spacious primary bedrooms and full baths. Ideal for owner-occupancy or investment, with excellent rental potential. Located minutes from Fitchburg State University—an excellent option for student housing—plus walking distance to the MBTA train for easy commuting.

offered at

$450,000

  • Status: New
  • Listing ID: 73492522
  • Bedrooms: 5
  • Full Baths: 2
  • Living Area: 2,312 sqft Convert
  • Lot Size: 4,269 sqft Convert
  • Acres: 0.1

Additional Details

Type: Multi-Family, Multi Family

Zip Code: 01420

Levels: 2

Parking

Garage Capacity: 2

Parking: Paved Drive, Off Street, Tandem, Paved

Parking Spaces: 2

Rooms and Dimensions

Total Units: 2

Total Floors: 2

Total Rooms: 9

Contact: LRG Boston at (617) 233-5800

LRGBOSTON.COM

355 Boylston St. Boston, MA 02116

Map

Photos