Luxury Real Estate Group Boston > Westminster > Lot 8 Park Street

LRG Boston

(617) 233-5800

355 Boylston St

Boston, Ma 02116

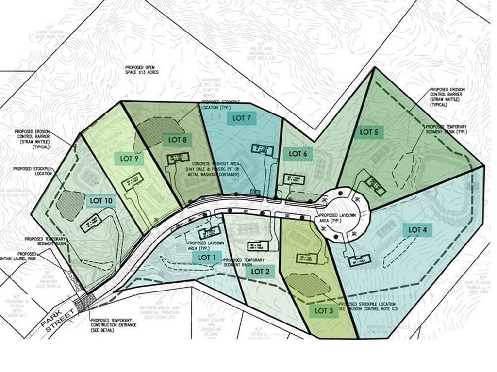
Lot 8 Park Street

Westminster, MA

Property Description

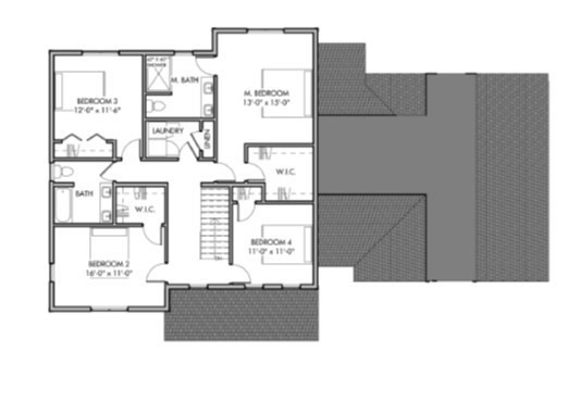
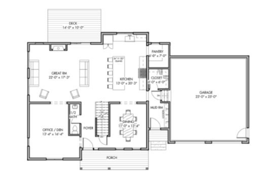
Introducing your dream home in the making! This brand-new construction offers you the exciting opportunity to personalize your space with your own design selections. Featuring four generously sized bedrooms and two full bathrooms, the primary suite is your private retreat, complete with a spacious walk-in closet and a luxurious en-suite bathroom. Enjoy the convenience of a dedicated first-floor home office, second-floor laundry, and a mudroom with built-in cubbies. The two-car garage and open floor plan create a seamless flow for modern living.This home is truly an HGTV-inspired masterpiece waiting to come to life! Note: The photos are representative of similar builds with some upgrades. Nestled in a charming, ten-lot subdivision, construction is set to begin next week, with the first home expected to be completed by Summer/Fall 2026. Choose from a variety of house plans or bring your own plan vision to life—other lots available.

offered at

$895,000

  • Status: New
  • Listing ID: 73493141
  • Bedrooms: 4
  • Full Baths: 2
  • Half Baths: 1
  • Living Area: 2,652 sqft Convert
  • Lot Size: 46,976 sqft Convert
  • Acres: 1.08

Additional Details

Type: Single Family, Single Family Residence

Zip Code: 01473

Parking

Garage: 2

Garage Capacity: 6

Parking: Attached, Storage, Paved Drive, Paved

Parking Spaces: 6

Rooms and Dimensions

Total Rooms: 9

Contact: LRG Boston at (617) 233-5800

LRGBOSTON.COM

355 Boylston St. Boston, MA 02116

Map

Photos