Luxury Real Estate Group Boston > Boston > 27 Marcella Street #G

LRG Boston

(617) 233-5800

355 Boylston St

Boston, Ma 02116

27 Marcella Street #G

Boston, MA

Property Description

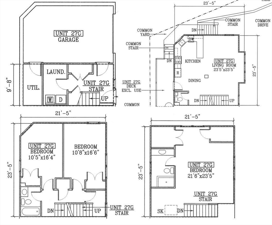
Rare end-unit townhouse available at 27 Marcella Street in coveted Fort Hill. This 4-level home offers a spacious and functional layout with abundant natural light from multiple exposures. The main living level features an open-concept living and dining area, ideal for both everyday living and entertaining, it also includes access to your own exclusive use deck! Third level provide well-separated bedroom spaces, perfect for privacy or a home office setup. Top-level primary suite has so many skylights that fill the space with natural light, complete with an ensuite bath for added privacy and comfort. Additional features include garage parking, in-unit laundry, and generous storage throughout. End-unit placement offers added privacy and a quiet setting. Conveniently located near the Orange Line, Southwest Corridor Park, Longwood Medical Area, and local restaurants and cafes. Easy access to downtown Boston. Condo-quality rental offering space, flexibility, and a prime Fort Hill location.

offered at

$4,700

  • Listing ID: 73493636
  • Bedrooms: 3
  • Full Baths: 2
  • Half Baths: 1
  • Living Area: 1,710 sqft Convert
  • Lot Size: 9,999 sqft Convert

Additional Details

Type: Rental, Condominium

Area: Roxbury's Fort Hill

Zip Code: 02119

Unit Level: 1

Parking

Garage: 1

Garage Capacity: 1

Parking Spaces: 1

Rooms and Dimensions

Total Rooms: 6

Contact: LRG Boston at (617) 233-5800

LRGBOSTON.COM

355 Boylston St. Boston, MA 02116

Map

Photos