Luxury Real Estate Group Boston > Clinton > 354-356 Water Street

LRG Boston

(617) 233-5800

355 Boylston St

Boston, Ma 02116

354-356 Water Street

Clinton, MA

Property Description

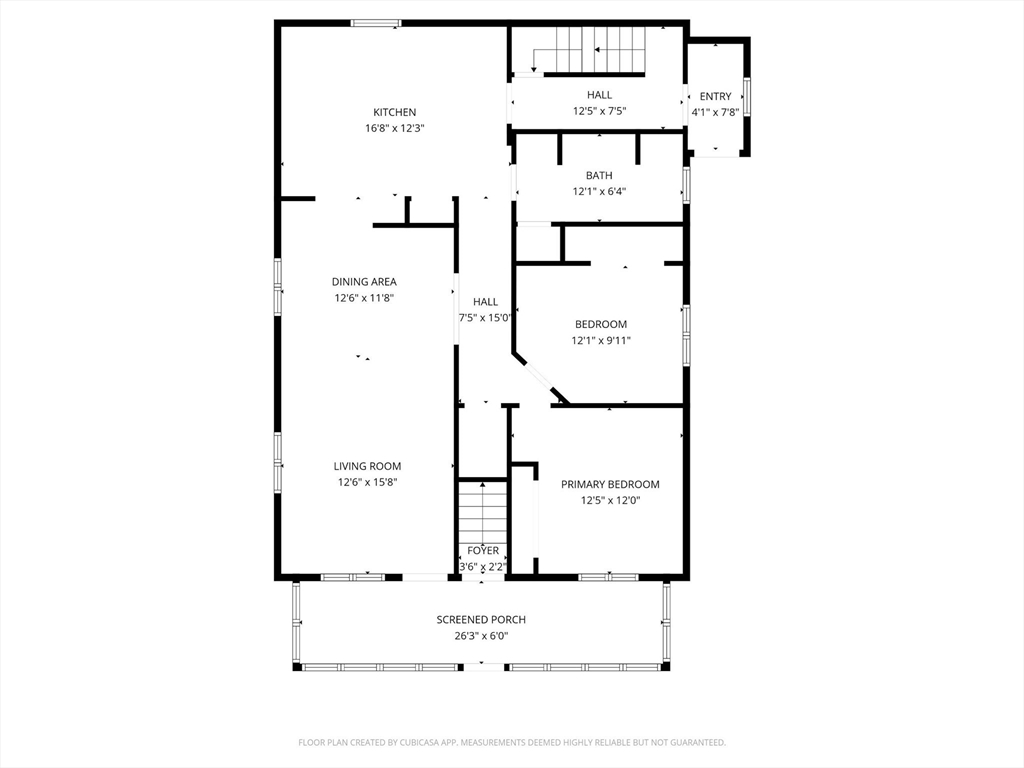
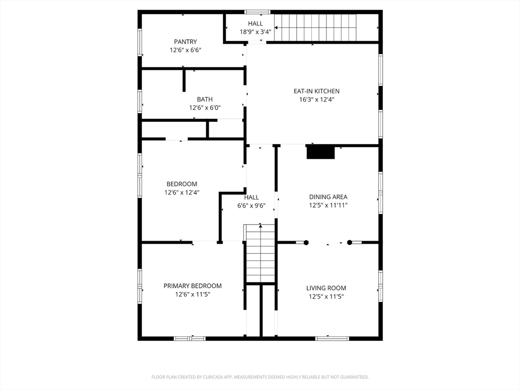
A two-family home suited for a variety of living and ownership goals, this property offers two bedrooms in each unit with strong potential to build equity through cosmetic updates. Gas heating provides efficient comfort, and two adjoining lots create expanded outdoor space for recreation, gardening, or entertaining. Both units feature eat-in kitchens and a mix of flooring for everyday functionality. Enclosed porches on both levels extend the living space and offer a relaxing spot to enjoy fresh air. The first-floor unit includes ceiling fans throughout and a washer in the bathroom. The second-floor unit features a built-in china cabinet and separate pantry area for added storage. A walk-up attic accessed from the second unit offers abundant storage and future potential, while basement laundry hookups add convenience. Ideally located near shopping, dining, parks, and major commuter routes including Routes 495 and 190, as well as the Wachusett Reservoir. Don’t miss this opportunity.

offered at

$449,995

  • Status: New
  • Listing ID: 73493655
  • Bedrooms: 4
  • Full Baths: 2
  • Living Area: 2,400 sqft Convert
  • Lot Size: 9,980 sqft Convert
  • Acres: 0.23

Additional Details

Type: Multi-Family, 2 Family - 2 Units Up/Down

Zip Code: 01510

Levels: 2

Parking

Garage Capacity: 3

Parking: Paved Drive, Off Street, Tandem, Paved

Parking Spaces: 3

Rooms and Dimensions

Total Units: 2

Total Floors: 2

Total Rooms: 9

Contact: LRG Boston at (617) 233-5800

LRGBOSTON.COM

355 Boylston St. Boston, MA 02116

Map

Photos