Luxury Real Estate Group Boston > South Hadley > 105 Mountain View St

LRG Boston

(617) 233-5800

355 Boylston St

Boston, Ma 02116

105 Mountain View St

South Hadley, MA

Property Description

An exceptional take on this expansive, beautifully reimagined ranch style residence that offers refined living in a private end-of-street setting. A sun-drenched living room welcomes you with an airy elegance, seamlessly transitioning into a sophisticated open-concept kitchen adorned with extensive cabinetry, upgraded countertops, and an inviting dining space designed for effortless entertaining. The main level also features three bedrooms, a full bath, and widened hallways that enhance the home’s sense of openness. Step outside to an impressive deck overlooking a serene backyard retreat, complete with an above-ground pool, garden space, and ample room. The fully finished lower level adds versatility with a spacious lounge, additional bedroom, full bath, walk-out access, and direct garage entry. Additional features include mini splits, updated windows & doors, stainless steel appliances, updated retaining wall-just to name a few! This home delivers well beyond what meets the eye!

offered at

$449,900

  • Status: New
  • Listing ID: 73493798
  • Bedrooms: 4
  • Full Baths: 2
  • Living Area: 2,156 sqft Convert
  • Lot Size: 15,000 sqft Convert
  • Acres: 0.34

Additional Details

Type: Single Family, Single Family Residence

Zip Code: 01075

Parking

Garage: 1

Garage Capacity: 5

Parking: Attached, Under, Paved Drive, Off Street, Paved

Parking Spaces: 5

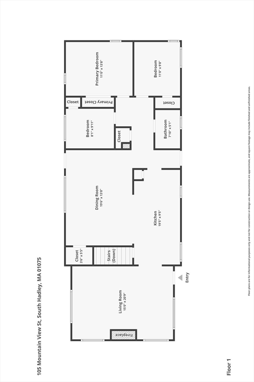
Rooms and Dimensions

Total Rooms: 8

Contact: LRG Boston at (617) 233-5800

LRGBOSTON.COM

355 Boylston St. Boston, MA 02116

Map

Photos