Luxury Real Estate Group Boston > Boston > 24 Moseley St

LRG Boston

(617) 233-5800

355 Boylston St

Boston, Ma 02116

24 Moseley St

Boston, MA

Property Description

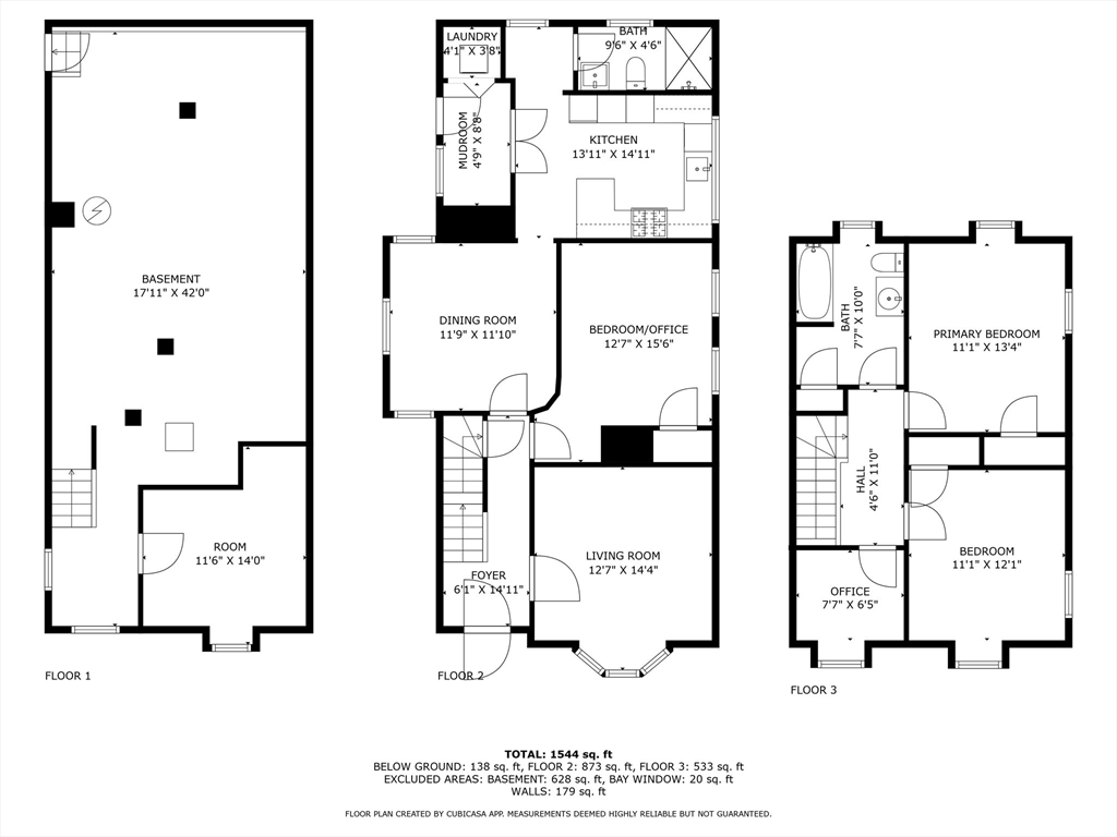
Nestled in Savin Hill. One of Dorchester’s most vibrant neighborhoods, this charming single-family home radiates pride in its ownership both inside and out. The meticulously designed floor plan boasts custom kitchen cabinetry, expansive countertops, and stainless steel appliances. Each room is elegantly decorated, featuring a formal living and dining room, three to four bedrooms, and 2 full bathrooms. Outside, a secluded contemplative patio invites relaxation, while a spacious driveway can comfortably accommodate four vehicles. Conveniently located within a five-minute walk to the Redline, this home offers complimentary shuttle service for Longwood Medical Area workers. Moreover, it’s a short stroll to Castle Island, Moakley Park, a friendly dog park, and other delightful attractions! Close to shopping, expressway , colleges and hospitals. Easy to show.

offered at

$949,900

  • Status: New
  • Listing ID: 73494063
  • Bedrooms: 3
  • Full Baths: 2
  • Living Area: 1,551 sqft Convert
  • Lot Size: 2,500 sqft Convert
  • Acres: 0.06

Additional Details

Type: Single Family, Single Family Residence

Area: Dorchester

Zip Code: 02125

Parking

Garage Capacity: 4

Parking: Paved Drive, Paved

Parking Spaces: 4

Rooms and Dimensions

Total Rooms: 9

Contact: LRG Boston at (617) 233-5800

LRGBOSTON.COM

355 Boylston St. Boston, MA 02116

Map

Photos