Luxury Real Estate Group Boston > Boston > 951 South Street

LRG Boston

(617) 233-5800

355 Boylston St

Boston, Ma 02116

951 South Street

Boston, MA

Property Description

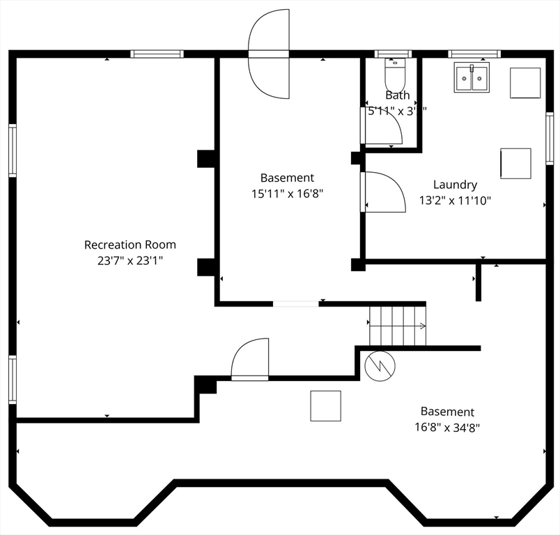
This distinguished Victorian, 11 room, 2 bath,1899 residence on South St. (formerly known as Doctor's Row) is being offered for 1st time in over 30 yrs. It's 3500 sq.ft. of spectacular, generous room sizes & 7,500 sq.ft. lot is enhanced by the home's high ceilings, breathtaking foyer w/its welcoming veranda, a dramatic staircase spauling its 3 levels of living area. The architectural details are outstanding and hard pressed to find in today's inventory. Current owner has maintained & restored its sophistication of the gorgeous molding, flooring & some mechanical systems, including gas heating system, water heater, roof (11 years) & replacement windows (2008). The 2nd floor's bathroom recently remodeled (2024) w/walk in shower & flooring w/radiant heat. Full basement w/finished rec room is bonus. Short walk to public transportation, stores, restaurants & steps to desired Fallon Park, don't overlook the luxury of a 1-car garage w/ample driveway. Kitchen and 1st floor bath need love.

offered at

$1,149,900

  • Status: New
  • Listing ID: 73494748
  • Bedrooms: 4
  • Full Baths: 2
  • Living Area: 3,573 sqft Convert
  • Lot Size: 7,454 sqft Convert
  • Acres: 0.17

Additional Details

Type: Single Family, Single Family Residence

Area: Roslindale

Zip Code: 02131

Parking

Garage: 1

Garage Capacity: 4

Parking: Detached, Paved Drive, Off Street

Parking Spaces: 4

Rooms and Dimensions

Total Rooms: 11

Contact: LRG Boston at (617) 233-5800

LRGBOSTON.COM

355 Boylston St. Boston, MA 02116

Map

Photos