Luxury Real Estate Group Boston > Boston > 466 Commonweatlh Ave #807

LRG Boston

(617) 233-5800

355 Boylston St

Boston, Ma 02116

466 Commonweatlh Ave #807

Boston, MA

Property Description

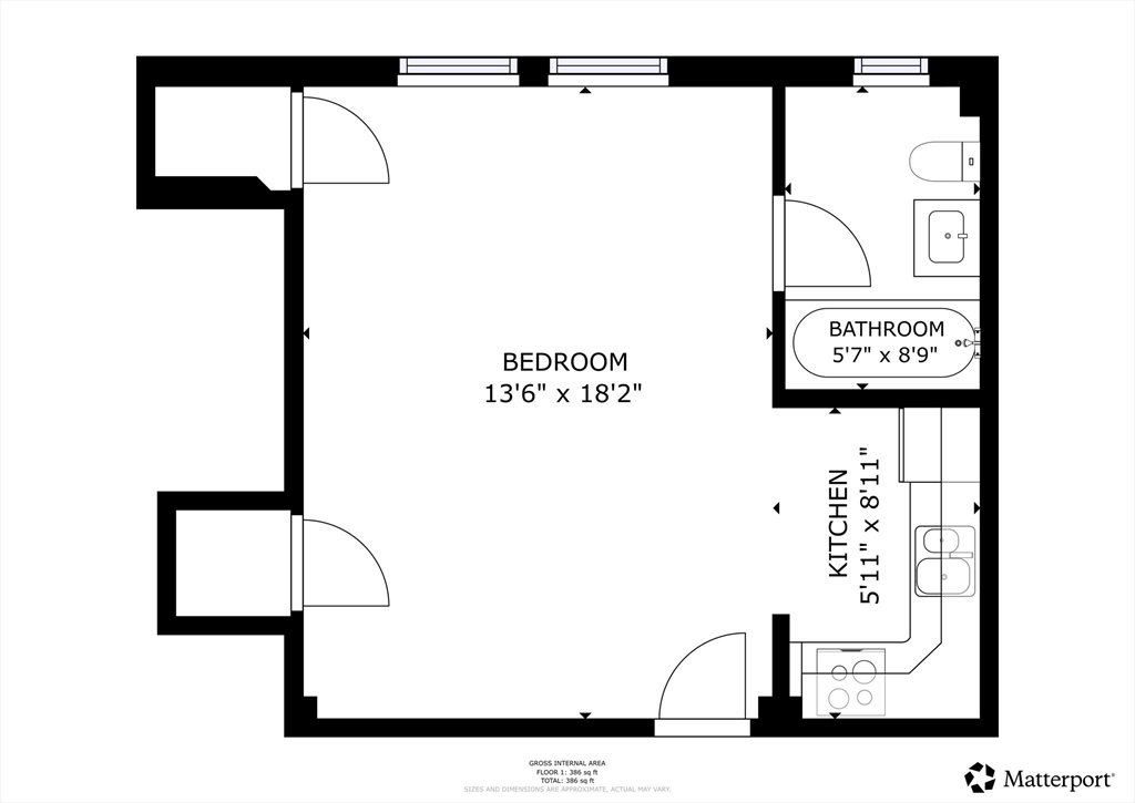
This stunning Eigth Floor Penthouse Studio was renovated in July of 2024 and is ready to occupy! In the heart of Kenmore Square near Boston University, the Green Line and so much more! Gleaming hardwood floors grab you as you enter. High liberating ceilings and classical wainscoating are some of the original features of the unit. A brand-new two-tone eat-in kitchen feels luxurious and modern and is full of light. Kitchen features include: Quartz countertops, a hidden Whirlpool dishwasher blended into the lower cabinets, a stainless steel refrigerator with bottom freezer, a garbage disposal, a modern microwave with multiple settings, a two burner electric stovetop that allows for more drawer storage space underneath than a traditional stove/oven combo (an air-fryer will be provided). This unit is rented fully furnished with all utilities, internet, and kitchen utensils and cookware provided for $3,300/month. An unfurnished rental is $3000/month.

offered at

$3,000

  • Status: Price Change
  • Listing ID: 73494924
  • Full Baths: 1
  • Living Area: 386 sqft Convert
  • Lot Size: 9,999,999 sqft Convert

Additional Details

Type: Rental, Condominium

Zip Code: 02215

Unit Level: 8

Rooms and Dimensions

Total Rooms: 3

Contact: LRG Boston at (617) 233-5800

LRGBOSTON.COM

355 Boylston St. Boston, MA 02116

Map

Photos