Luxury Real Estate Group Boston > Northampton > 86 Conz St

LRG Boston

(617) 233-5800

355 Boylston St

Boston, Ma 02116

86 Conz St

Northampton, MA

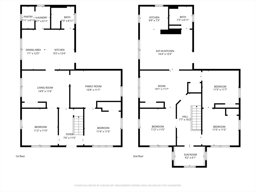
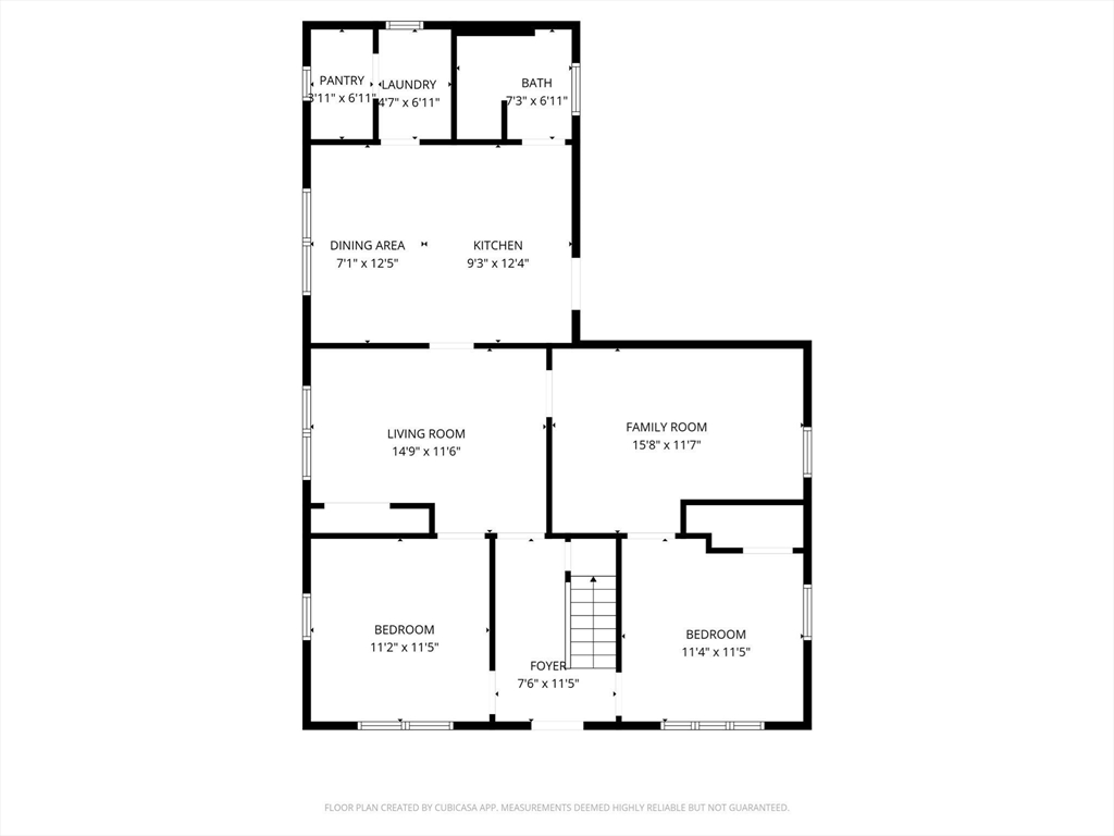
Property Description

FRESHLY UPDATED! Amazing opportunity for a prime downtown Northampton location you will LOVE. Perfect for owner-occupants or investors seeking strong rental income. Enjoy easy access to popular eateries, the bike path, Elms College, and I-91. The space you've been looking for at a price you can't beat! Convenience and charm come together here. A paved driveway provides great off-street parking, while the covered & enclosed front porches and double rear decks offer outdoor spaces to relax and enjoy the outdoors. The first-floor unit features a spacious eat-in kitchen and dining room, walk-in pantry, full bath, and a flexible layout featuring a central living room plus three additional bedrooms. Upstairs, the bright and airy second floor is vacant & includes three bedrooms, a comfortable living room, generous kitchen with dining area, and full bath. Updated electrical panels and efficient gas heat add peace of mind to this well-maintained, move-in-ready property! Don't miss it!

offered at

$499,000

  • Listing ID: 73494999
  • Bedrooms: 6
  • Full Baths: 2
  • Living Area: 2,176 sqft Convert
  • Lot Size: 12,336 sqft Convert
  • Acres: 0.28

Additional Details

Type: Multi-Family, Multi Family

Zip Code: 01060

Levels: 2

Parking

Garage Capacity: 4

Parking: Paved,Off Street

Parking Spaces: 4

Rooms and Dimensions

Total Units: 2

Total Floors: 2

Total Rooms: 10

Has Basement: Yes

Contact: LRG Boston at (617) 233-5800

LRGBOSTON.COM

355 Boylston St. Boston, MA 02116

Map

Photos