Luxury Real Estate Group Boston > Milford > 64 Prospect Hts #64

LRG Boston

(617) 233-5800

355 Boylston St

Boston, Ma 02116

64 Prospect Hts #64

Milford, MA

Property Description

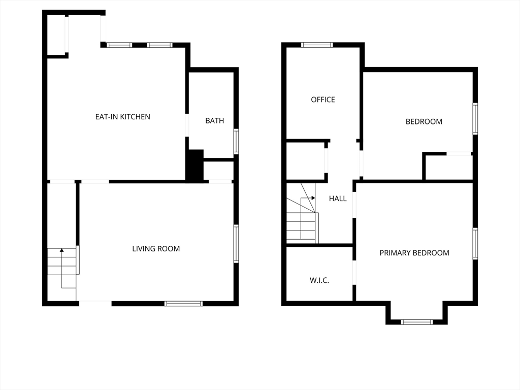
Welcome to 64 Prospect Heights in Milford! This well-maintained condex offers a fantastic alternative to traditional condo living with no condo fee. Located in a quiet neighborhood, this home features a bright and inviting layout with all new hardwood flooring and recessed lighting completed in 2020. The main level offers comfortable living space, while the upper level includes well-sized bedrooms. Enjoy a fenced-in backyard—perfect for outdoor relaxation, pets, or entertaining. Additional features include a full basement offering great storage or future potential, a newly installed Ring security camera system, and EV charger connection. Conveniently located with easy access to I-495, shopping, restaurants, and local amenities. A great opportunity for homeownership with added privacy, value, and flexibility!

offered at

$360,000

  • Status: New
  • Listing ID: 73495094
  • Bedrooms: 3
  • Full Baths: 1
  • Living Area: 1,004 sqft Convert

Additional Details

Type: Condo, Condex

Style: Duplex

Zip Code: 01757

Living Levels: 2

Unit Level: 1

Parking

Garage Capacity: 3

Parking: Off Street, Paved

Parking Spaces: 3

Rooms and Dimensions

Total Units: 2

Total Floors: 2

Total Rooms: 5

Contact: LRG Boston at (617) 233-5800

LRGBOSTON.COM

355 Boylston St. Boston, MA 02116

Map

Photos