Luxury Real Estate Group Boston > Dunstable > 473 High St

LRG Boston

(617) 233-5800

355 Boylston St

Boston, Ma 02116

473 High St

Dunstable, MA

Property Description

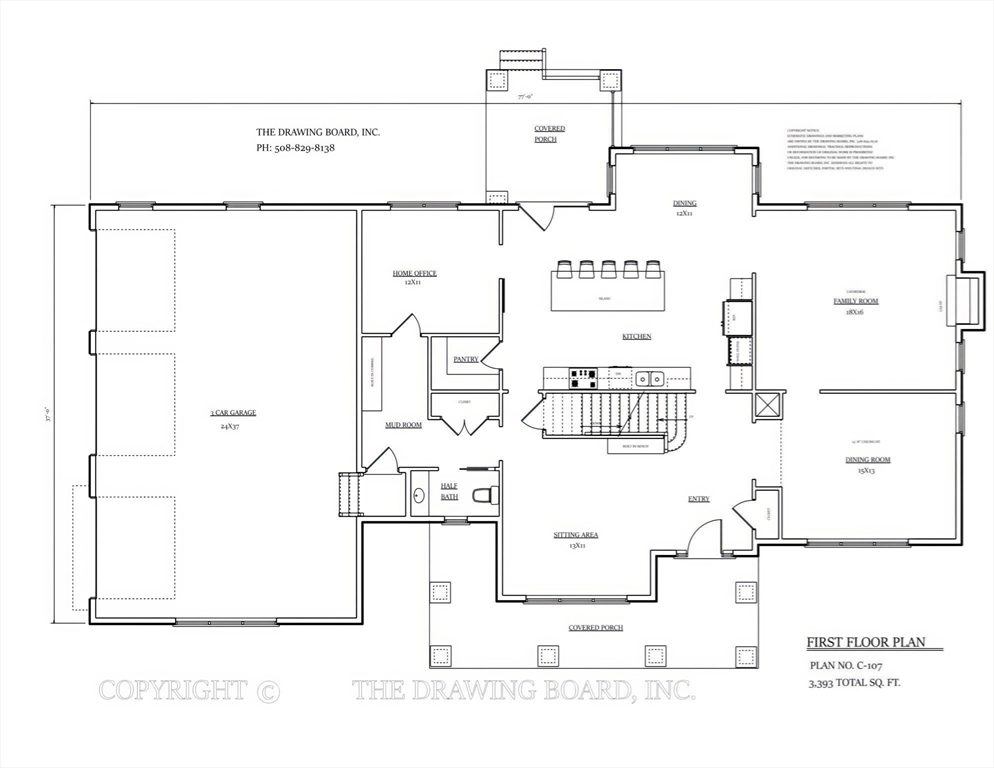
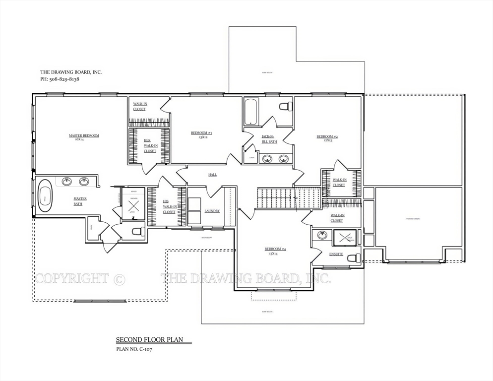
Projected completion End of 2026. Builder: Larkin Builders LLC. Designed by The Drawing Board, Inc. Buyers may still personalize kitchen layout, cabinetry, tile, flooring, lighting, hardware, and paint selections with the builder’s design team. Home features open kitchen with walk-in pantry, quartz island, and fireplaced family room overlooking private yard. Primary suite with dual walk-ins and spa-style bath.3-car EV-ready garage. Plans and renderings are conceptual; square footage and details subject to change. Active site—no unaccompanied visits. Reach out to listing agent for full spec sheet, floor plans, and builder package.

offered at

$1,599,000

  • Status: New
  • Listing ID: 73495192
  • Bedrooms: 5
  • Full Baths: 3
  • Half Baths: 1
  • Living Area: 3,393 sqft Convert
  • Lot Size: 87,120 sqft Convert
  • Acres: 2

Additional Details

Type: Single Family, Single Family Residence

Zip Code: 01827

Parking

Garage: 3

Garage Capacity: 9

Parking: Attached

Parking Spaces: 9

Rooms and Dimensions

Total Rooms: 9

Contact: LRG Boston at (617) 233-5800

LRGBOSTON.COM

355 Boylston St. Boston, MA 02116

Map

Photos