Luxury Real Estate Group Boston > Sudbury > 39 Austin Rd

LRG Boston

(617) 233-5800

355 Boylston St

Boston, Ma 02116

39 Austin Rd

Sudbury, MA

Property Description

This is a thoughtfully redesigned & updated home with open concept for today's living. Wonderful flat lot useable in front, back & sides. Beautiful plantings everywhere. Brick & stone walkway welcomes you into a gracious FP LR & DR. HW flrs. The heart of the home is the chef's kitchen with large center island, brand new SS appliances, custom cabinetry, desk area with shelves, which flows seamlessly into the skylit fam rm with walls of windows, vaulted ceilings & gorgeous Ash flooring. 3 good sized BRs plus MBR suite with sitting alcove or home office. DBL sinks, lots of custom designed cabinets, mirrors, jetted tub & separate glass shower. Full lower level FP fam rm plus another versatile space for home office/den/aupair/inlaw.rec rm. Laundry rm w cabs & closet. Updated IBC furnace/hot water system & central air. 2 1/2 car gar. Near Conservation, Swim & Tennis, Town /Pool, new Rail Trail. Meticulously maintained with many wonderful qualities for you to enjoy

offered at

$1,195,000

  • Status: New
  • Listing ID: 73495728
  • Bedrooms: 4
  • Full Baths: 2
  • Half Baths: 1
  • Living Area: 3,864 sqft Convert
  • Lot Size: 30,056 sqft Convert
  • Acres: 0.69

Additional Details

Type: Single Family, Single Family Residence

Zip Code: 01776

Levels: Multi/Split

Parking

Garage: 2

Garage Capacity: 6

Parking: Attached, Garage Door Opener, Storage, Garage Faces Side, Oversized, Paved Drive, Off Street, Paved

Parking Spaces: 6

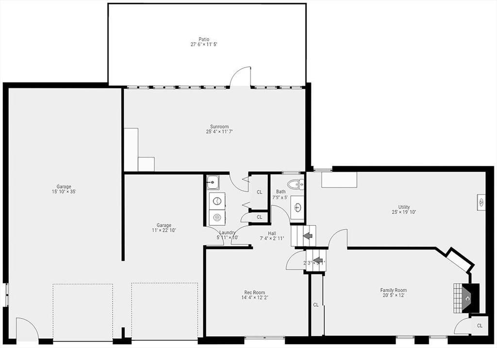
Rooms and Dimensions

Total Rooms: 10

Contact: LRG Boston at (617) 233-5800

LRGBOSTON.COM

355 Boylston St. Boston, MA 02116

Map

Photos