Luxury Real Estate Group Boston > Wellfleet > 65 & 75 Deer Path Way

LRG Boston

(617) 233-5800

355 Boylston St

Boston, Ma 02116

65 & 75 Deer Path Way

Wellfleet, MA

Property Description

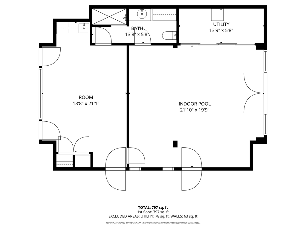
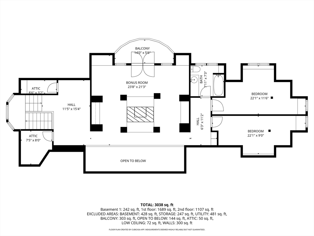
Discover a timeless piece of livable art. It is a masterclass in organic design by architect Robert Kennedy and builder Eric Winslow. Set on 2.48 wooded acres bordering the estuaries of Herring River (Cape Cod National Seashore), this estate offers ultimate privacy. Kennedy's signature integration of architecture and custom furnishings begins at the boardwalk entrance and continues throughout the home. The interior features connected separation, using a central chimney, open balconies, and elevation changes to define spaces while maintaining an airy flow. Multiple curving perches offer intimate views of the wild Wellfleet landscape. While social areas are open, the bedrooms are distinctly private. The property also includes a 400 sq. ft. studio loft with a kitchenette above the two-car garage, plus a separate structure housing an artist's studio (also with kitchenette) and a once-functional indoor pool. This home is the pinnacle of Outer Cape privacy and architectural intent.

offered at

$2,400,000

  • Listing ID: 73495809
  • Bedrooms: 5
  • Full Baths: 4
  • Half Baths: 1
  • Living Area: 4,209 sqft Convert
  • Lot Size: 108,028 sqft Convert
  • Acres: 2.48

Additional Details

Type: Single Family, Single Family Residence

Zip Code: 02667

HOA Fee: $500

Parking

Garage: 2

Garage Capacity: 2

Parking: Detached,Garage Door Opener

Parking Spaces: 8

Rooms and Dimensions

Total Rooms: 11

Has Basement: Yes

Contact: LRG Boston at (617) 233-5800

LRGBOSTON.COM

355 Boylston St. Boston, MA 02116

Map

Photos