Luxury Real Estate Group Boston > Melrose > 381 Washington St

LRG Boston

(617) 233-5800

355 Boylston St

Boston, Ma 02116

381 Washington St

Melrose, MA

Property Description

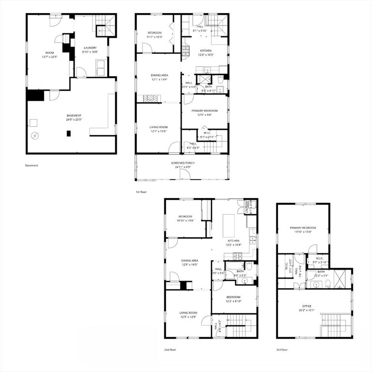
Two-family beauty! This home is an exceptional opportunity for owner-occupants, investors, or multigenerational living. The 2-story upper unit lives like a single featuring a light-filled primary suite, large home office or studio, & expansive views. Fully renovated over the past decade, including professional design and modern finishes. Each unit has its own private deck overlooking the landscaped, tree-lined yard as well as access to an enclosed shared front porch. Owned solar panels provide added efficiency & energy savings. Outside, enjoy a rare, large fenced-in yard, 2-car garage & additional rear parking. Close to downtown Melrose, commuter rail, Oak Grove orange line, I-93, & the Middlesex Fells, offering a seamless blend of nature, convenience, & access to Boston. A rare opportunity to own a turnkey multi with both lifestyle appeal & strong investment upside, making this an ideal setup to offset your mortgage or build long-term wealth with confidence.

offered at

$1,199,000

  • Status: New
  • Listing ID: 73495933
  • Bedrooms: 5
  • Full Baths: 3
  • Living Area: 2,950 sqft Convert
  • Lot Size: 11,565 sqft Convert
  • Acres: 0.27

Additional Details

Type: Multi-Family, Multi Family

Zip Code: 02176

Levels: 4

Parking

Garage: 2

Garage Capacity: 8

Parking: Paved Drive, Off Street, Driveway

Parking Spaces: 8

Rooms and Dimensions

Total Units: 2

Total Floors: 4

Total Rooms: 14

Contact: LRG Boston at (617) 233-5800

LRGBOSTON.COM

355 Boylston St. Boston, MA 02116

Map

Photos