Luxury Real Estate Group Boston > Plymouth > 14 Founders Way #14

LRG Boston

(617) 233-5800

355 Boylston St

Boston, Ma 02116

14 Founders Way #14

Plymouth, MA

Property Description

Welcome to Summer Reach, a highly desirable 55+ community offering exceptional amenities including a clubhouse, pool, and beautifully maintained garden areas. This stunning home was the original model and showcases an impressive array of upgrades throughout. Step inside to find a thoughtfully designed layout featuring a first-floor primary suite, convenient first-floor laundry, and a dedicated home office. The home is filled with character and charm, highlighted by vaulted ceilings, custom built-ins, and elegant custom blinds and curtains. Enjoy additional living space in the bright and inviting three-season sunroom, perfect for relaxing or entertaining. Outside, a beautifully crafted paver patio provides the ideal setting for outdoor gatherings. Meticulously maintained and truly gorgeous, this home offers comfort, style, and easy living in one of the area’s most sought-after communities.

offered at

$875,000

  • Status: New
  • Listing ID: 73496192
  • Bedrooms: 3
  • Full Baths: 2
  • Half Baths: 1
  • Living Area: 2,181 sqft Convert

Additional Details

Type: Condo, Condominium

Style: Townhouse

Zip Code: 02360

HOA Fee: $476

Living Levels: 3

Unit Level: 1

Parking

Garage: 2

Garage Capacity: 4

Parking: Attached, Garage Door Opener, Off Street, Paved

Parking Spaces: 4

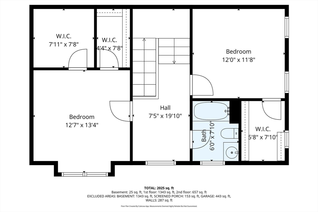
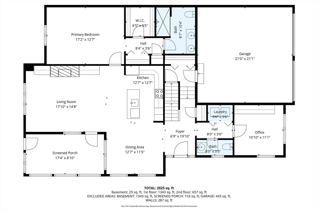
Rooms and Dimensions

Total Units: 112

Total Floors: 3

Total Rooms: 8

Contact: LRG Boston at (617) 233-5800

LRGBOSTON.COM

355 Boylston St. Boston, MA 02116

Map

Photos