Luxury Real Estate Group Boston > North Andover > 36 Empire Drive

LRG Boston

(617) 233-5800

355 Boylston St

Boston, Ma 02116

36 Empire Drive

North Andover, MA

Property Description

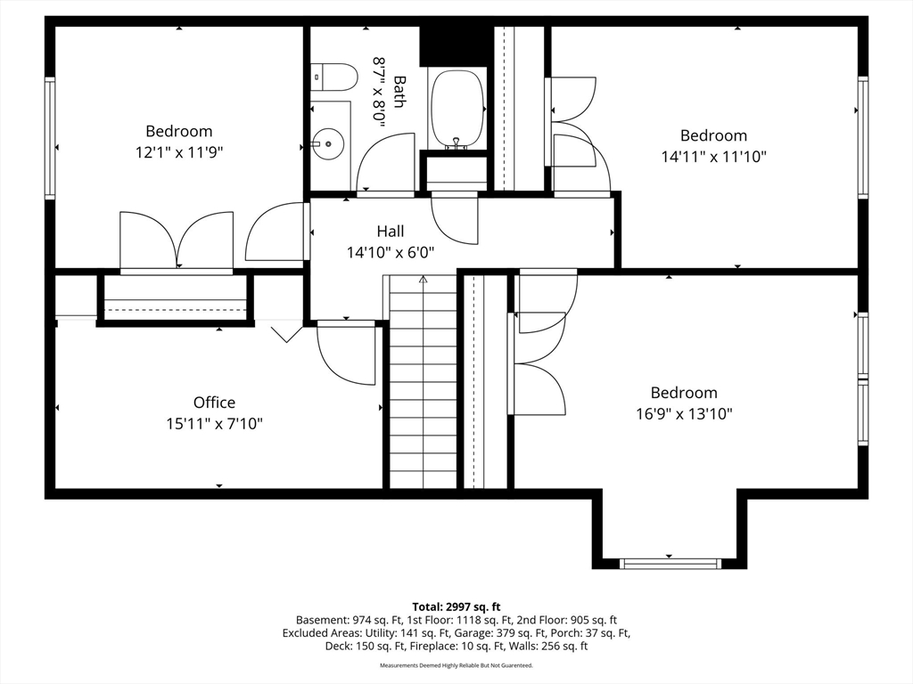
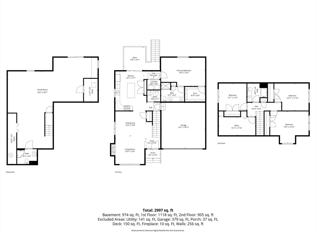
Stunning newer home offering modern elegance in one of North Andover’s most desirable neighborhoods. This beautifully designed open-concept home offers ~3,000 sq ft with 4 bedrooms plus a dedicated office and 3.5 baths, blending style and functionality. The spacious primary suite features a walk-in closet and luxurious ensuite bath. Enjoy a bright, airy layout with a gas fireplace, gas cooking, gleaming granite countertops, a pantry closet, and three zones of central A/C and heat. Plantation shutters add timeless appeal throughout, and each bedroom closet is outfitted with custom shelving. The finished lower level with a full bath provides flexible space for guests, recreation, or a home office. Relax or entertain on the private stone paver patio. Ideally located near commuter routes, Harold Parker State Forest, Stevens Pond, Lake Cochichewick, Boston Hill Farm, and Smolak Farms, and within the desirable Franklin School District, offering exceptional lifestyle and convenience.

offered at

$974,900

  • Listing ID: 73496725
  • Bedrooms: 4
  • Full Baths: 3
  • Half Baths: 1
  • Living Area: 2,997 sqft Convert
  • Lot Size: 27,081 sqft Convert
  • Acres: 0.62

Additional Details

Type: Single Family, Single Family Residence

Zip Code: 01845

Parking

Garage: 2

Garage Capacity: 4

Parking: Attached, Off Street

Parking Spaces: 4

Rooms and Dimensions

Total Rooms: 9

Contact: LRG Boston at (617) 233-5800

LRGBOSTON.COM

355 Boylston St. Boston, MA 02116

Map

Photos