Luxury Real Estate Group Boston > Plainville > 35 Paddock Drive

LRG Boston

(617) 233-5800

355 Boylston St

Boston, Ma 02116

35 Paddock Drive

Plainville, MA

Property Description

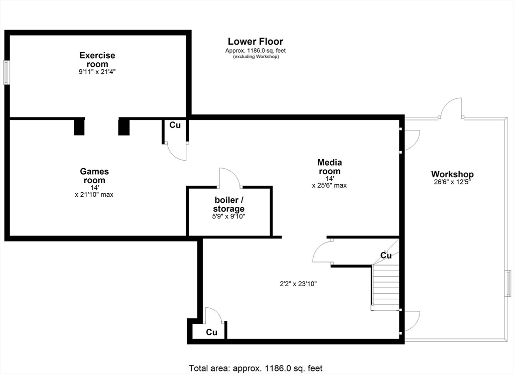
Welcome to 35 Paddock Drive, a beautifully maintained 4-bedroom, 2.5-bath home located in the Walnut Hill Estates neighborhood of Plainville, with nearby walking trails for outdoor enjoyment. A standout feature is the full in-law apartment with its own private side entrance, complete with a full kitchen, spacious family room, full bath, and one bedroom, plus direct access to the deck—ideal for extended family, guests, or flexible living arrangements. Main home features an updated kitchen with granite countertops, seamlessly flowing into an open floor plan perfect for everyday living and entertaining. Lower level is fully finished, offering additional living space with a gym area, pool table space, and playroom. Upstairs, the generously sized primary bedroom provides a comfortable retreat, along with three additional bedrooms with new wall-to-wall carpeting. Recent updates include a first-floor AC condenser, new first-floor lighting, composite deck and fenced yard.

offered at

$995,000

  • Status: New
  • Listing ID: 73496929
  • Bedrooms: 5
  • Full Baths: 3
  • Half Baths: 1
  • Living Area: 4,182 sqft Convert
  • Lot Size: 21,253 sqft Convert
  • Acres: 0.49

Additional Details

Type: Single Family, Single Family Residence

Zip Code: 02762

HOA Fee: $850

Parking

Garage: 2

Garage Capacity: 6

Parking: Attached, Paved Drive, Paved

Parking Spaces: 6

Rooms and Dimensions

Total Rooms: 11

Contact: LRG Boston at (617) 233-5800

LRGBOSTON.COM

355 Boylston St. Boston, MA 02116

Map

Photos