Luxury Real Estate Group Boston > Rockport > 17 Story Street

LRG Boston

(617) 233-5800

355 Boylston St

Boston, Ma 02116

17 Story Street

Rockport, MA

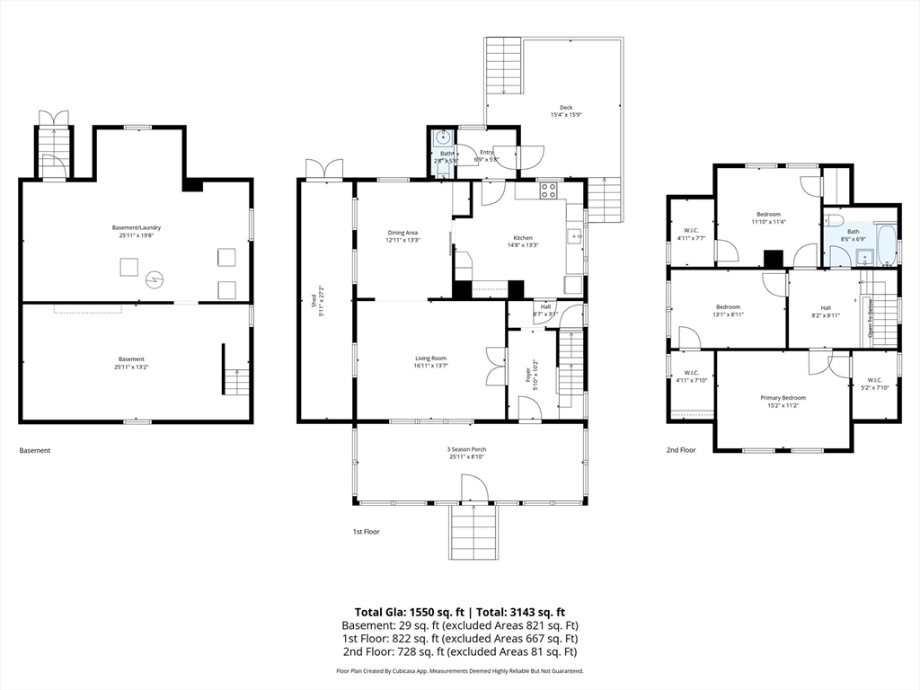
Property Description

Pigeon Cove Neighborhood welcomes you to this Arts and Crafts style home that carries quality, style and character of it's era with architectural presence. The first floor greets you with a three season porch that provides the perfect setting to enjoy dinners and company into the night. High ceilings come to mind when you first enter with wood flooring mostly throughout. The dining room displays a built in china cabinet. Spacious bright kitchen with well appointed custom lighting. Three thoughtfully proportioned bedrooms, each providing a tranquil space including walk-in closets with it's own windows. Cedar closet for your cherished linens. Distant ocean views. A substantial lot encompassing just a little over half an acre and provides considerable grounds, inviting opportunities for outdoor enjoyment and private landscaping endeavors. Large side shed storage space. Full basement. Potential property development.

offered at

$850,000

  • Status: New
  • Listing ID: 73498080
  • Bedrooms: 3
  • Full Baths: 1
  • Half Baths: 1
  • Living Area: 1,550 sqft Convert
  • Lot Size: 22,085 sqft Convert
  • Acres: 0.51

Additional Details

Type: Single Family, Single Family Residence

Area: Ocean View

Zip Code: 01966

Parking

Garage Capacity: 5

Parking: Paved Drive, Off Street, Paved

Parking Spaces: 5

Rooms and Dimensions

Total Rooms: 6

Contact: LRG Boston at (617) 233-5800

LRGBOSTON.COM

355 Boylston St. Boston, MA 02116

Map

Photos