Luxury Real Estate Group Boston > Somerville > 39 Bond St #39

LRG Boston

(617) 233-5800

355 Boylston St

Boston, Ma 02116

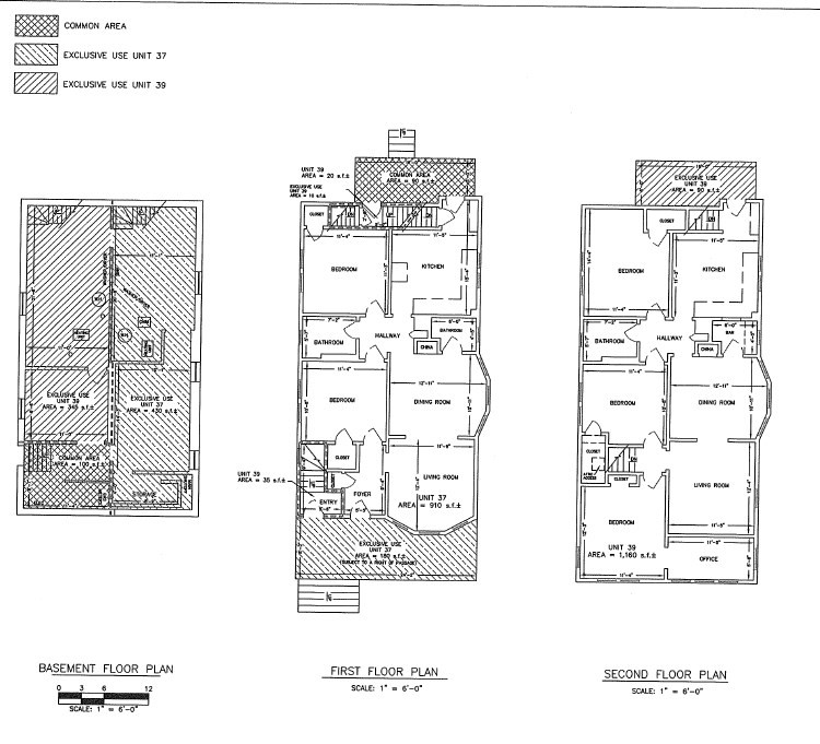
39 Bond St #39

Somerville, MA

Property Description

This is the top-floor, spacious condo buyers search for—and rarely find! Perched atop a 2-family in desirable Winter Hill, this bright, charming home offers indoor/outdoor living, light and privacy. With 1,215+ sq ft, the layout lives large with 3 generous beds PLUS bonus flex space for an office, walk-in closet, or nursery, basement space with a bonus room, abundant storage, and new washer & dryer, and a ½ garage for convenient bike storage, home gym, or projects. Open yet functional, the flow is designed for real living, entertaining, and relaxing. The kitchen features new quartz counters and backsplash with a charming pass-through wet bar (plumbed for a future ½ bath) connecting to the open dining/living area with original built-in hutch. Enjoy a private back deck overlooking a fenced yard oasis with a patio under a cherry blossom tree. Nicely updated and maintained, quiet yet central—under 1 mile to Gilman T, shops, restaurants, parks, Assembly Row, the bike path & I-93. Tour it!

offered at

$719,000

  • Status: New
  • Listing ID: 73498242
  • Bedrooms: 3
  • Full Baths: 1
  • Living Area: 1,215 sqft Convert
  • Lot Size: 3,592 sqft Convert
  • Acres: 0.08

Additional Details

Type: Condo, Condominium

Style: 2/3 Family

Area: Winter Hill

Zip Code: 02145

HOA Fee: $292

Living Levels: 2

Unit Level: 2

Parking

Garage Capacity: 1

Parking: Detached, Storage, Workshop in Garage, Off Street, Tandem, Paved

Parking Spaces: 1

Rooms and Dimensions

Total Units: 2

Total Floors: 2

Total Rooms: 7

Contact: LRG Boston at (617) 233-5800

LRGBOSTON.COM

355 Boylston St. Boston, MA 02116

Map

Photos