Luxury Real Estate Group Boston > Sandwich > 204 Farmersville Rd

LRG Boston

(617) 233-5800

355 Boylston St

Boston, Ma 02116

204 Farmersville Rd

Sandwich, MA

Property Description

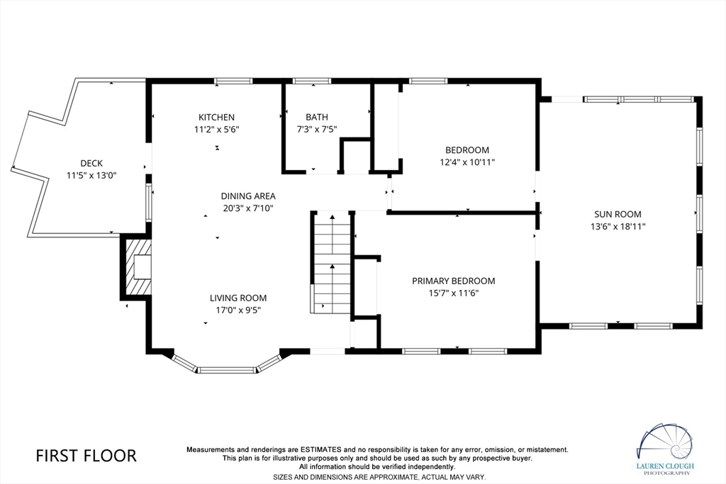
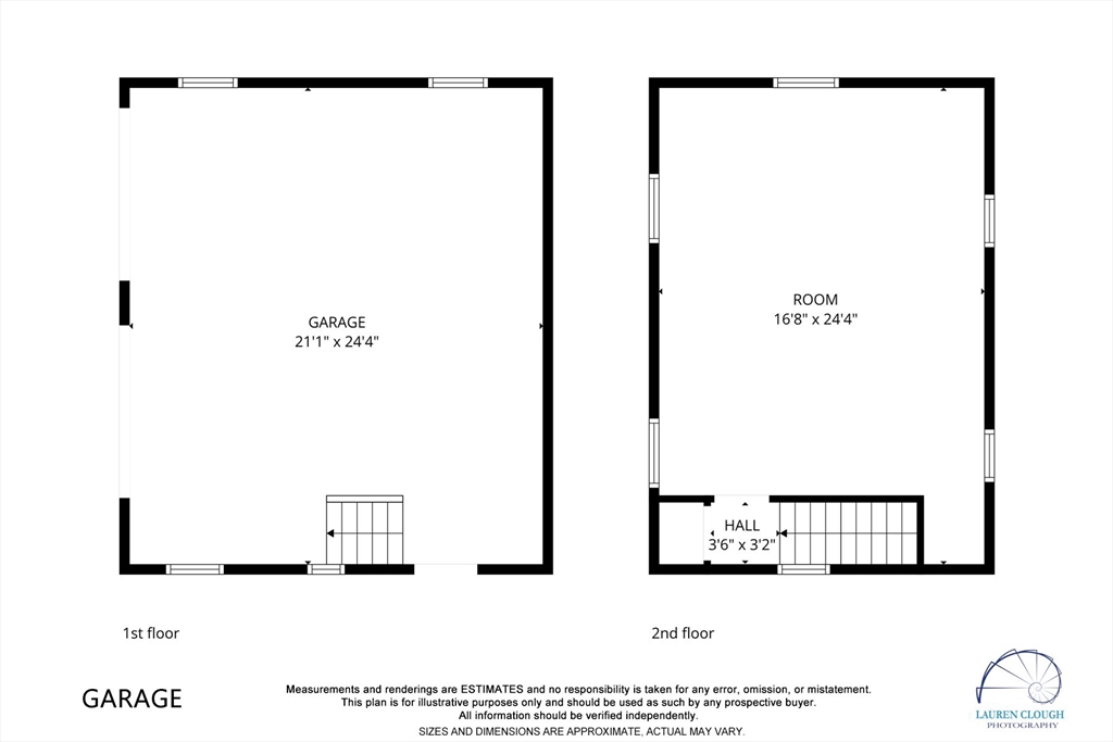
Warm and welcoming Cape Cod home with wood-burning fireplace, beamed ceilings, and pine floors in the charming kitchen/dining room. First floor bathroom, cozy living room, first floor bedroom and spacious sun room with beamed cathedral ceiling and ceiling fan, ductless mini-split AC unit, and beautiful pine floors complete the first floor. Upstairs is a spacious master bedroom with cedar window seat, ceiling fan, and direct access to second floor bath shared with a third bedroom. Interior access to full, unfinished basement with laundry area. Detached two-car garage with finished room above. Property backs up to conservation land and has mature rhododendron bushes and gardens in the front. You are invited to see this sweet home!

offered at

$680,000

  • Listing ID: 73498807
  • Bedrooms: 3
  • Full Baths: 2
  • Living Area: 1,708 sqft Convert
  • Lot Size: 40,511 sqft Convert
  • Acres: 0.93

Additional Details

Type: Single Family, Single Family Residence

Zip Code: 02563

Parking

Garage: 2

Garage Capacity: 6

Parking: Detached, Garage Door Opener, Storage, Garage Faces Side, Stone/Gravel

Parking Spaces: 6

Rooms and Dimensions

Total Rooms: 6

Contact: LRG Boston at (617) 233-5800

LRGBOSTON.COM

355 Boylston St. Boston, MA 02116

Map

Photos