Luxury Real Estate Group Boston > Chelsea > 41 Webster Ave

LRG Boston

(617) 233-5800

355 Boylston St

Boston, Ma 02116

41 Webster Ave

Chelsea, MA

Property Description

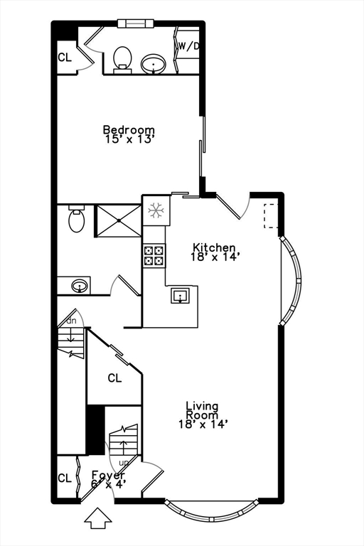
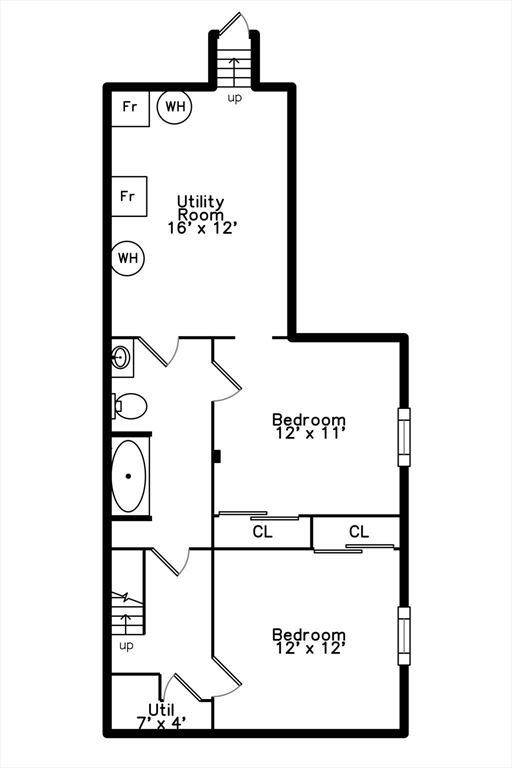
This lovely single family with in-law unit space has been owned and well maintained by the same family for three generations! Located on the quieter end of Webster Ave Chelsea, the lot provides four (4) paved off street parking spaces and has yard space in rear to allow owners ability to enjoy a back yard BBQ or relaxation in the sun. The ground level in-law unit is split between two levels with kitchen, living full bath and bedroom with half bath/ & washer/dryer on top level. Lower level has finished area two separate rooms and a full bath along with the utility room towards rear. Second unit is also comprised of two (2) levels with kitchen, living and full bath on entry, with two large bedrooms each with walk in closets on third floor. Second level is occupied with a tenant with lease ending in August 2026.

offered at

$869,900

  • Status: New
  • Listing ID: 73498956
  • Bedrooms: 5
  • Full Baths: 3
  • Half Baths: 1
  • Living Area: 2,885 sqft Convert
  • Lot Size: 5,000 sqft Convert
  • Acres: 0.11

Additional Details

Type: Multi-Family, Multi Family

Zip Code: 02150

Levels: 4

Parking

Garage Capacity: 4

Parking Spaces: 4

Rooms and Dimensions

Total Units: 2

Total Floors: 4

Total Rooms: 9

Contact: LRG Boston at (617) 233-5800

LRGBOSTON.COM

355 Boylston St. Boston, MA 02116

Map

Photos